Официальное опубликование правовых актов
ОФИЦИАЛЬНОЕ ОПУБЛИКОВАНИЕ
Приказ Министерства градостроительства и архитектуры Пензенской области от 23.09.2024 № 23-383
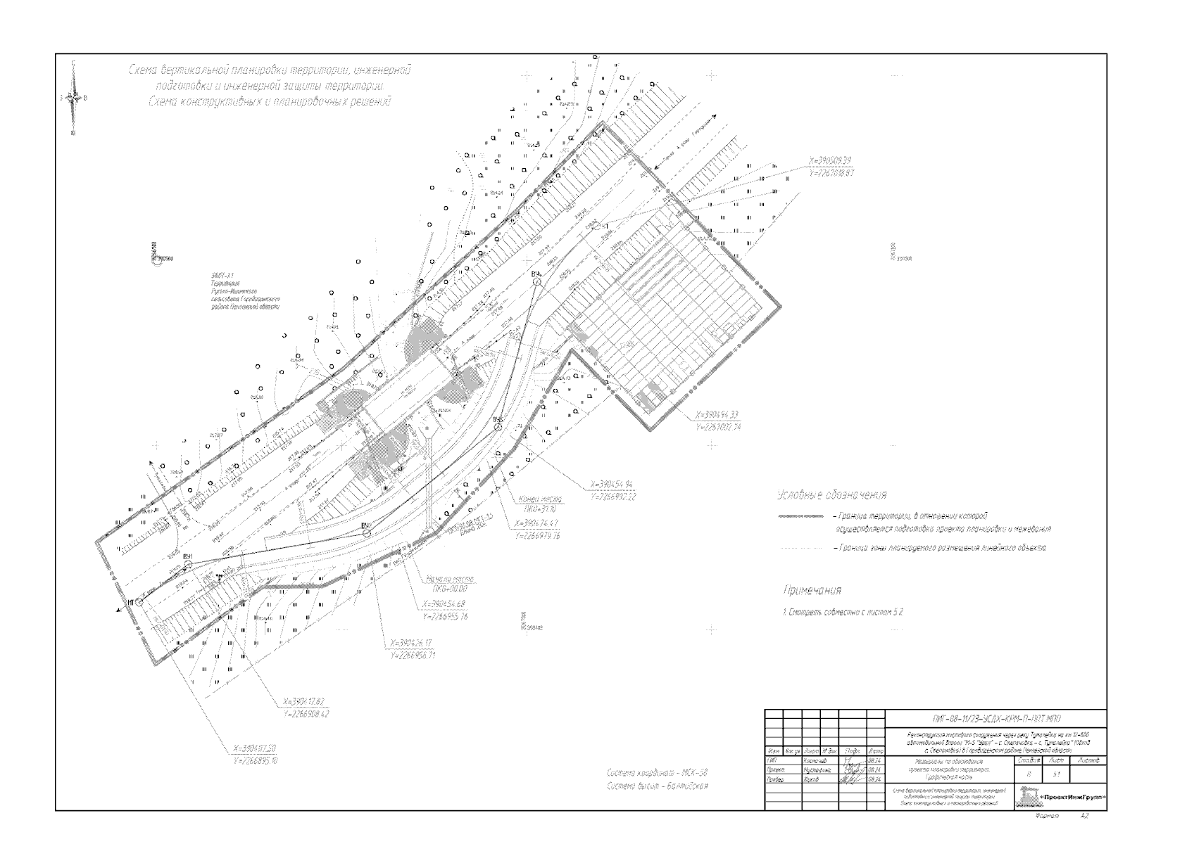
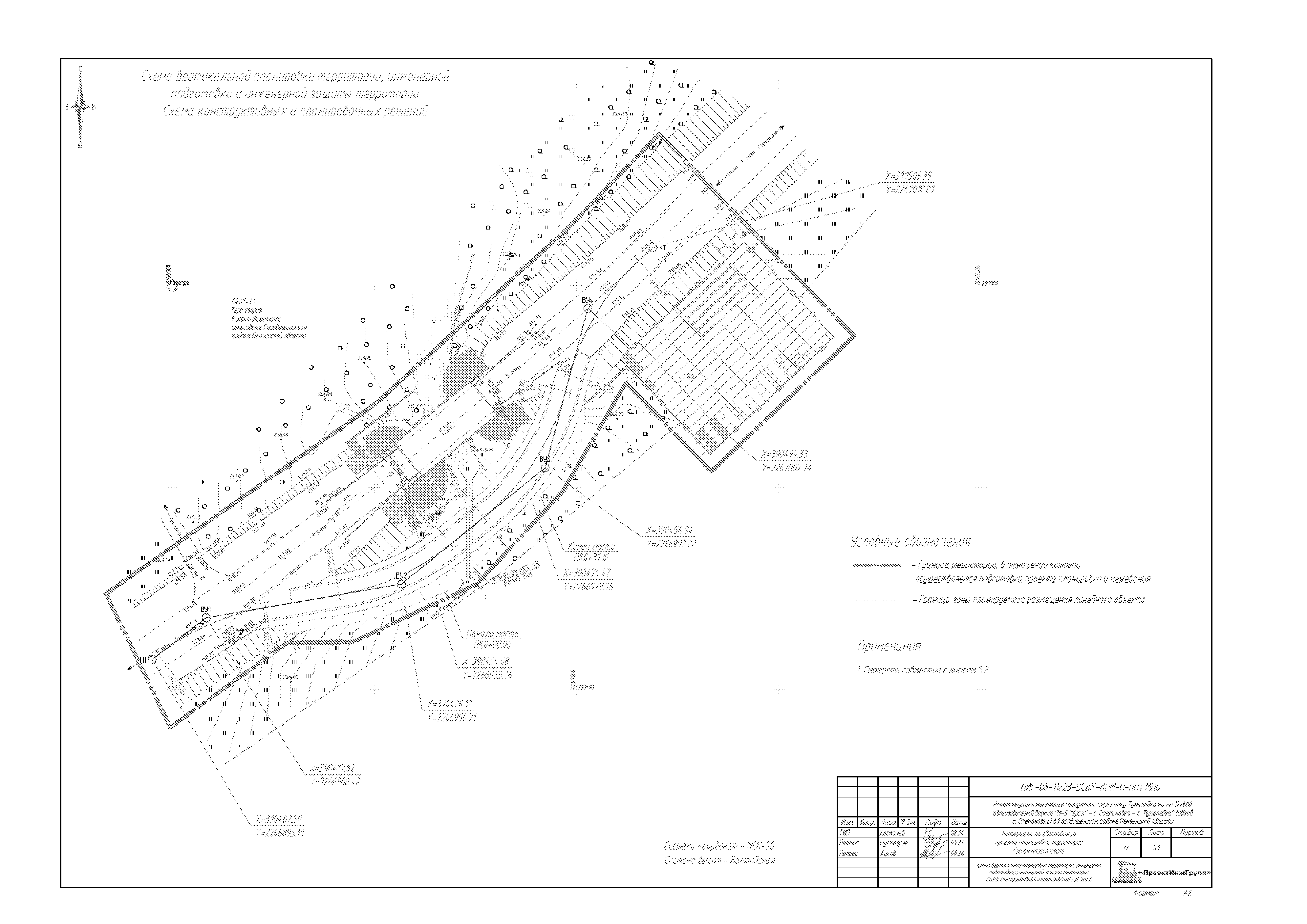
"Об утверждении проекта планировки и проекта межевания территории (основные части проекта планировки территории и проекта межевания территории) линейного объекта: "Реконструкция мостового сооружения через реку Тумалейка на км 12+600 автомобильной дороги "М-5 "Урал" - с. Степановка – с. Тумалейка" (Обход с. Степановка) в Городищенском районе Пензенской области"
(Зарегистрирован 23.09.2024 № 23-383)
Номер опубликования: 5801202409240002
Дата опубликования: 24.09.2024
Страница №35 из 58: