Приказ Комитета по охране объектов культурного наследия Псковской области от 21.07.2020 № 397
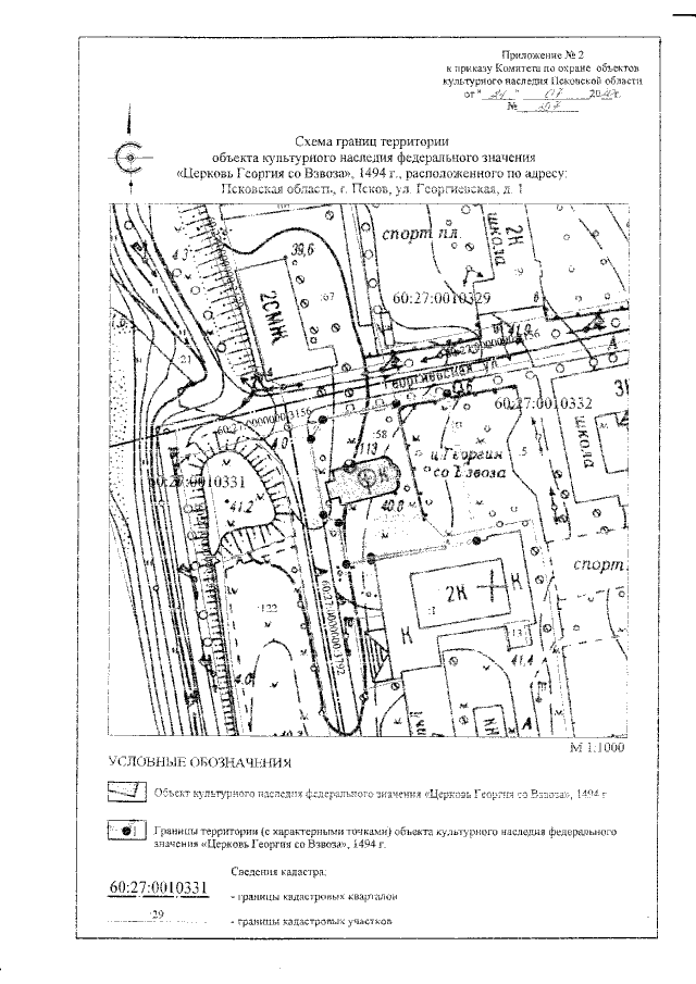
"О внесении изменений в приказ Государственного комитета Псковской области по охране объектов культурного наследия от 12.11.2014 № 719 "Об утверждении границы территории объекта культурного наследия федерального значения "Об утверждении границы территории объекта культурного наследия федерального значения "Церковь Георгия со Взвоза", 1494 г., расположенного по адресу: Псковская область, г. Псков, ул. Карла Либкнехта (уточненный адрес: г. Псков, ул. Георгиевская, 1)"
"О внесении изменений в приказ Государственного комитета Псковской области по охране объектов культурного наследия от 12.11.2014 № 719 "Об утверждении границы территории объекта культурного наследия федерального значения "Об утверждении границы территории объекта культурного наследия федерального значения "Церковь Георгия со Взвоза", 1494 г., расположенного по адресу: Псковская область, г. Псков, ул. Карла Либкнехта (уточненный адрес: г. Псков, ул. Георгиевская, 1)"
Номер опубликования: 6001202007300004
Дата опубликования:
30.07.2020
