Официальное опубликование правовых актов
ОФИЦИАЛЬНОЕ ОПУБЛИКОВАНИЕ
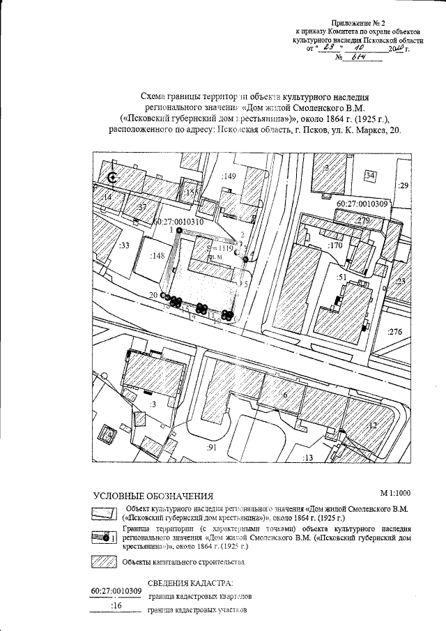
Приказ Комитета по охране объектов культурного наследия Псковской области от 29.10.2020 № 664
"Об утверждении границы территории объекта культурного наследия регионального значения "Дом жилой Смоленского В.М. ("Псковский губернский дом крестьянина")", около 1864 г. (1925 г.), расположенного по адресу: Псковская область, г. Псков, ул. К. Маркса, 20"
Номер опубликования: 6001202011060015
Дата опубликования: 06.11.2020
Страница №6 из 8:
Увеличить