Приказ Комитета по строительству и жилищно-коммунальному хозяйству Псковской области от 07.12.2020 № 90-ОД
"Об утверждении методических рекомендаций по обеспечению доступности объектов социальной, транспортной и инженерной инфраструктур для инвалидов и других маломобильных групп населения"
"Об утверждении методических рекомендаций по обеспечению доступности объектов социальной, транспортной и инженерной инфраструктур для инвалидов и других маломобильных групп населения"
Номер опубликования: 6001202012090002
Дата опубликования:
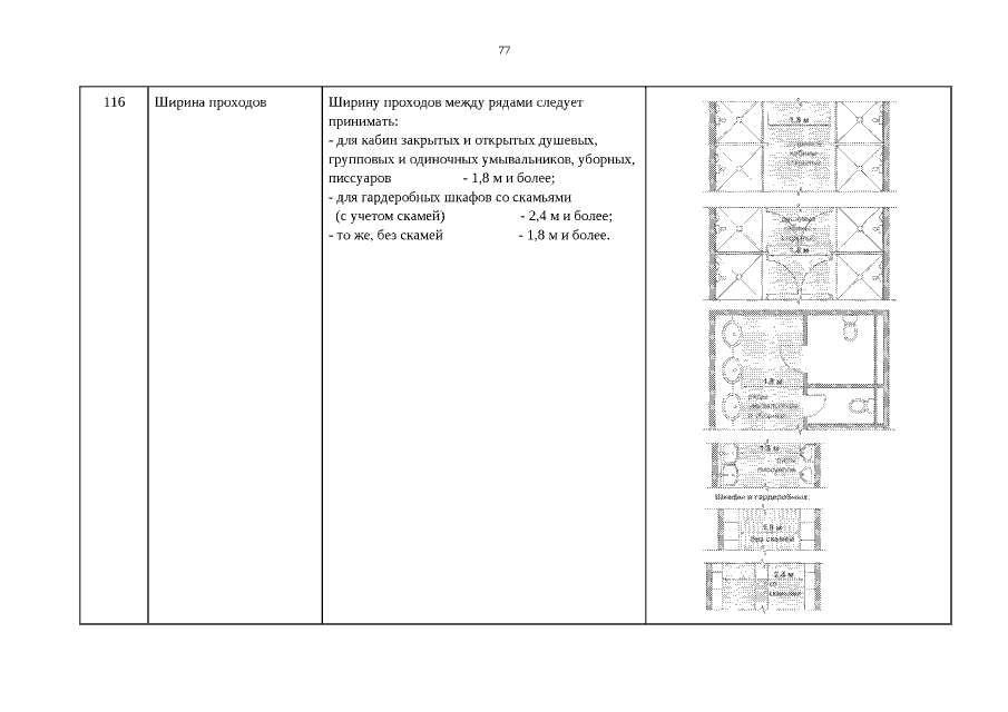
09.12.2020
