Официальное опубликование правовых актов
ОФИЦИАЛЬНОЕ ОПУБЛИКОВАНИЕ
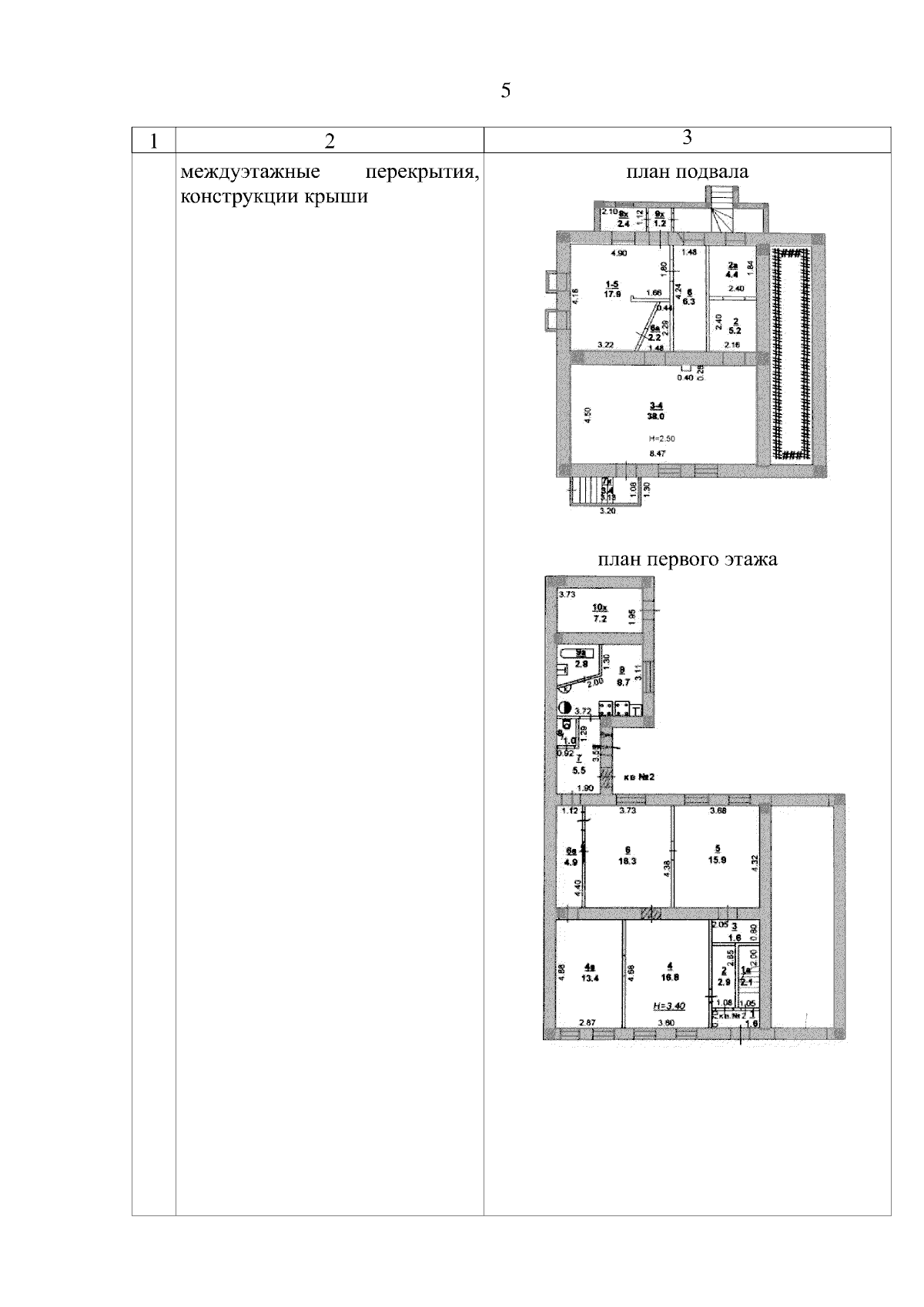
Постановление Комитета по охране объектов культурного наследия Ростовской области от 03.12.2024 № 2665
"Об утверждении предмета охраны объекта культурного наследия регионального значения (памятника) "Доходный дом Р.Ф. Кузьмина", расположенного по адресу: Ростовская область, городской округ город Ростов-на-Дону, город Ростов-на-Дону, улица Баумана, дом 41"
(Зарегистрирован 03.12.2024 № 2665)
Номер опубликования: 6101202412050014
Дата опубликования: 05.12.2024
Страница №5 из 17:
Увеличить