Официальное опубликование правовых актов
ОФИЦИАЛЬНОЕ ОПУБЛИКОВАНИЕ
Постановление Комитета по охране объектов культурного наследия Ростовской области от 06.10.2025 № 2306
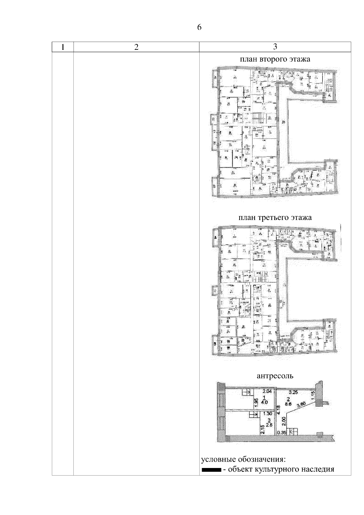
"Об утверждении предмета охраны объекта культурного наследия регионального значения (памятника) "Доходный дом Т.А. Ходяковой", расположенного по адресу: Ростовская область, городской округ город Ростов-на-Дону, город Ростов-на-Дону, проспект Соколова, дом 32"
(Зарегистрирован 06.10.2025 № 2306)
Номер опубликования: 6101202510100003
Дата опубликования: 10.10.2025
Страница №6 из 21:
Увеличить