Официальное опубликование правовых актов
ОФИЦИАЛЬНОЕ ОПУБЛИКОВАНИЕ
Постановление Комитета по охране объектов культурного наследия Ростовской области от 20.11.2025 № 2598
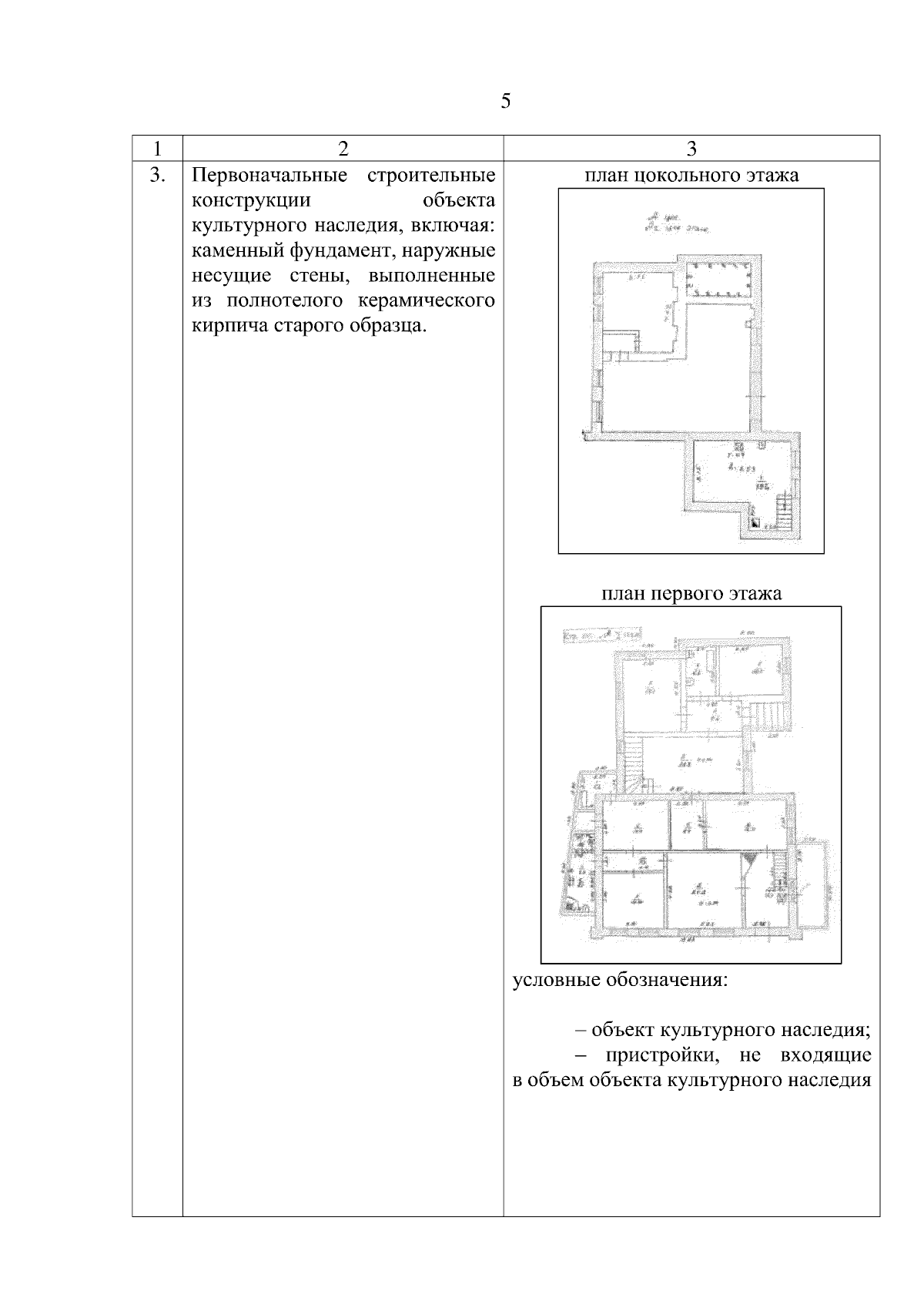
"О включении выявленного объекта культурного наследия "Жилой дом городского архитектора М.П. Петрова" в единый государственный реестр объектов культурного наследия (памятников истории и культуры) народов Российской Федерации в качестве объекта культурного наследия регионального значения (памятника) с наименованием "Жилой дом городского архитектора М.П. Петрова", 1863 – 1867 гг., расположенного по адресу: Российская Федерация, Ростовская область, городской округ город Таганрог, город Таганрог, улица Петровская, дом 36, об утверждении предмета охраны, границ территории и требований к осуществлению деятельности в границах его территории"
(Зарегистрирован 20.11.2025 № 2598)
Номер опубликования: 6101202511240003
Дата опубликования: 24.11.2025
Страница №5 из 14:
Увеличить