Официальное опубликование правовых актов
ОФИЦИАЛЬНОЕ ОПУБЛИКОВАНИЕ
Постановление Комитета по охране объектов культурного наследия Ростовской области от 18.12.2025 № 2800
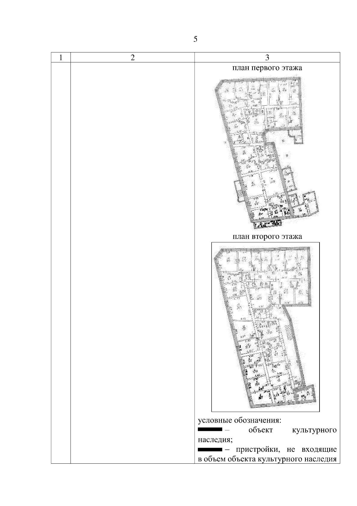
"О включении выявленного объекта культурного наследия "Дом Сиригос" в единый государственный реестр объектов культурного наследия (памятников истории и культуры) народов Российской Федерации в качестве объекта культурного наследия регионального значения (памятника) с наименованием "Дом А.А. Белова", 1850 г., расположенного по адресу: Российская Федерация, Ростовская область, городской округ город Таганрог, город Таганрог, улица Александровская, дом 13, об утверждении предмета охраны, границ территории и требований к осуществлению деятельности в границах его территории"
(Зарегистрирован 18.12.2025 № 2800)
Номер опубликования: 6101202512220035
Дата опубликования: 22.12.2025
Страница №5 из 19:
Увеличить