Официальное опубликование правовых актов
ОФИЦИАЛЬНОЕ ОПУБЛИКОВАНИЕ
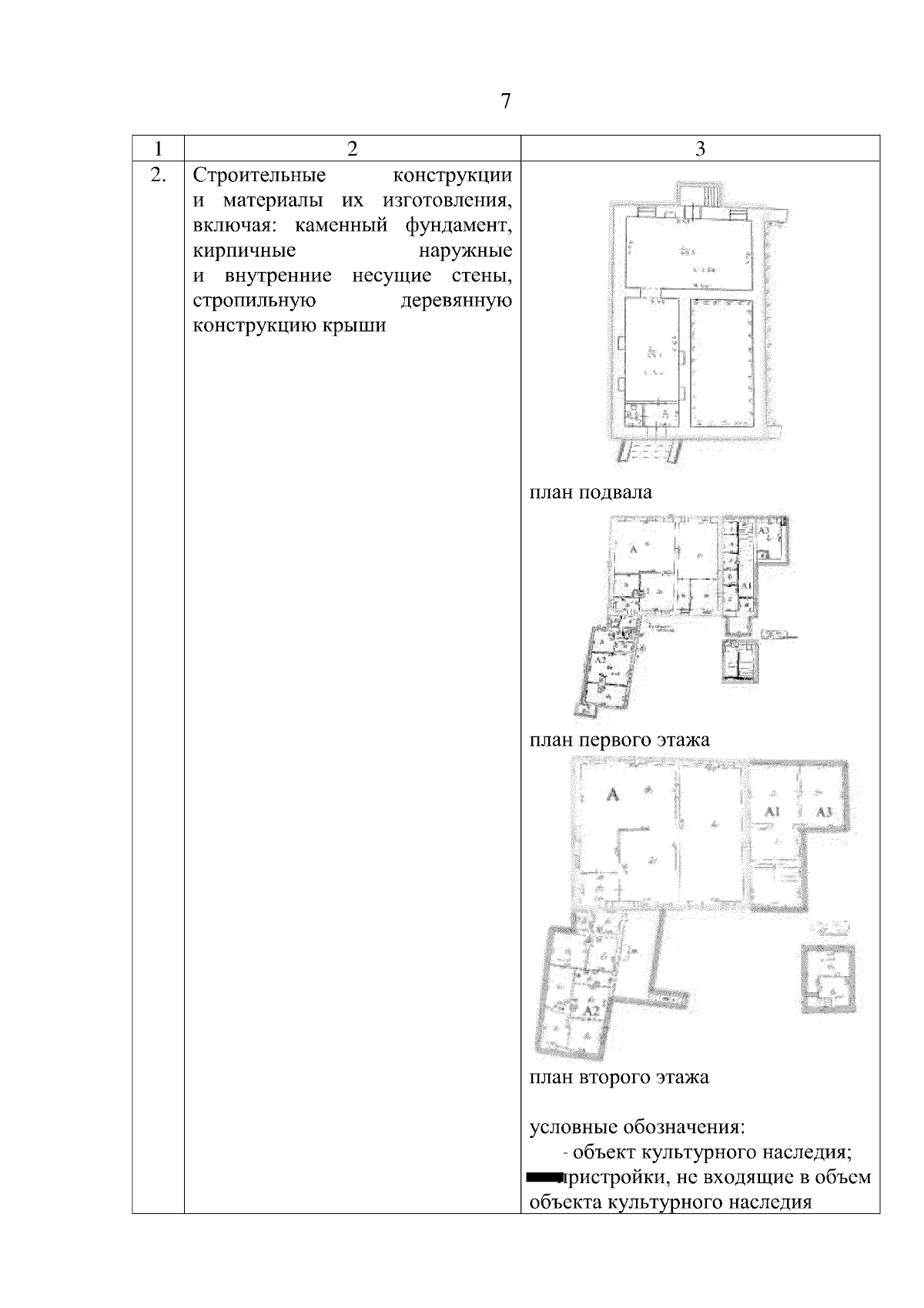
Постановление Комитета по охране объектов культурного наследия Ростовской области от 18.12.2025 № 2818
"О включении выявленного объекта культурного наследия "Домовладение М. Шарковой" в единый государственный реестр объектов культурного наследия (памятников истории и культуры) народов Российской Федерации в качестве объекта культурного наследия регионального значения (ансамбля) с наименованием "Домовладение М. Шарковой", 1892 г., 1895 г., расположенного по адресу: Российская Федерация, Ростовская область, городской округ город Таганрог, город Таганрог, переулок Лермонтовский, дом 6, с пообъектным составом, об утверждении предмета охраны, границ территории и требований к осуществлению деятельности в границах его территории"
(Зарегистрирован 18.12.2025 № 2818)
Номер опубликования: 6101202512220039
Дата опубликования: 22.12.2025
Страница №7 из 22:
Увеличить