Постановление Комитета по охране объектов культурного наследия Ростовской области от 18.12.2025 № 2806
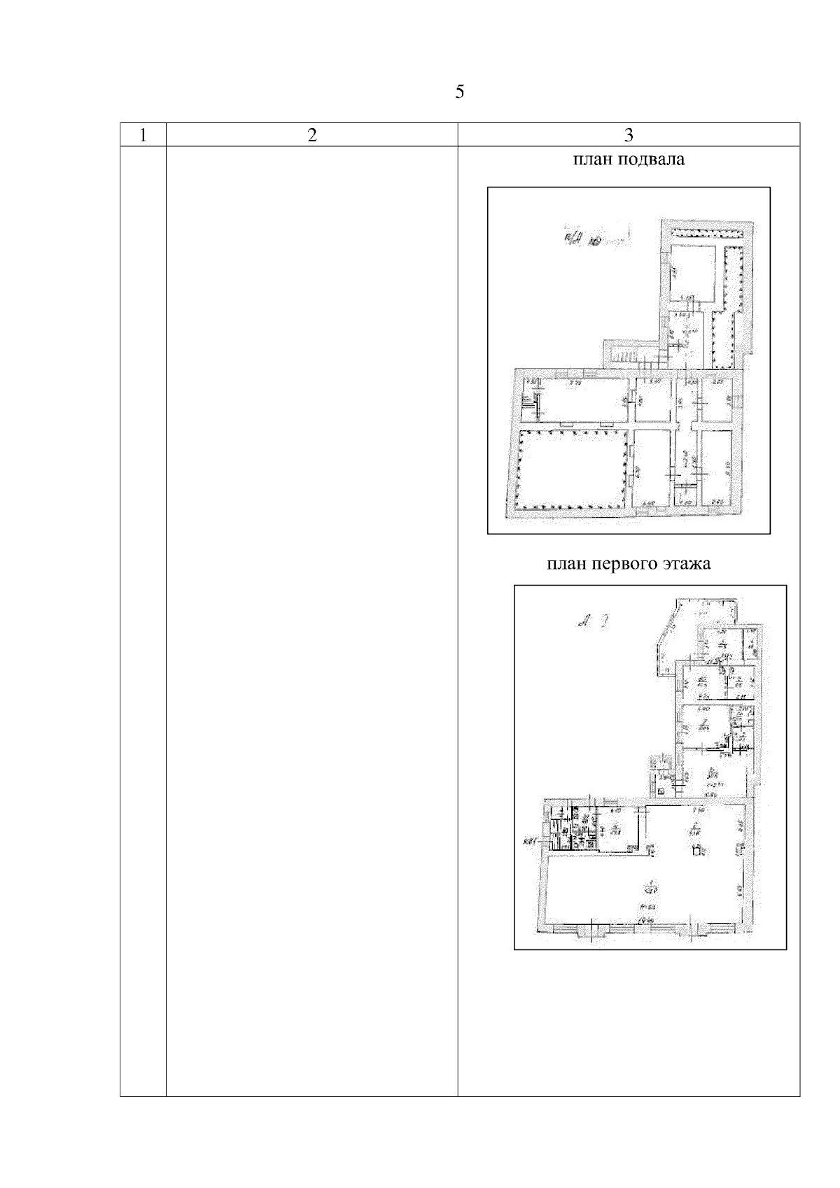
"О включении выявленного объекта культурного наследия "Магазин К. Автандилова" в единый государственный реестр объектов культурного наследия (памятников истории и культуры) народов Российской Федерации в качестве объекта культурного наследия регионального значения (памятника) с наименованием "Доходный дом Н.И. Бардашева", середина ХIХ в.; начало ХХ в., расположенного по адресу: Российская Федерация, Ростовская область, городской округ город Таганрог, город Таганрог, улица Петровская, дом 39, об утверждении предмета охраны, границ территории и требований к осуществлению деятельности в границах его территории"
(Зарегистрирован 18.12.2025 № 2806)
"О включении выявленного объекта культурного наследия "Магазин К. Автандилова" в единый государственный реестр объектов культурного наследия (памятников истории и культуры) народов Российской Федерации в качестве объекта культурного наследия регионального значения (памятника) с наименованием "Доходный дом Н.И. Бардашева", середина ХIХ в.; начало ХХ в., расположенного по адресу: Российская Федерация, Ростовская область, городской округ город Таганрог, город Таганрог, улица Петровская, дом 39, об утверждении предмета охраны, границ территории и требований к осуществлению деятельности в границах его территории"
(Зарегистрирован 18.12.2025 № 2806)
Номер опубликования: 6101202512220051
Дата опубликования:
22.12.2025
