Официальное опубликование правовых актов
ОФИЦИАЛЬНОЕ ОПУБЛИКОВАНИЕ
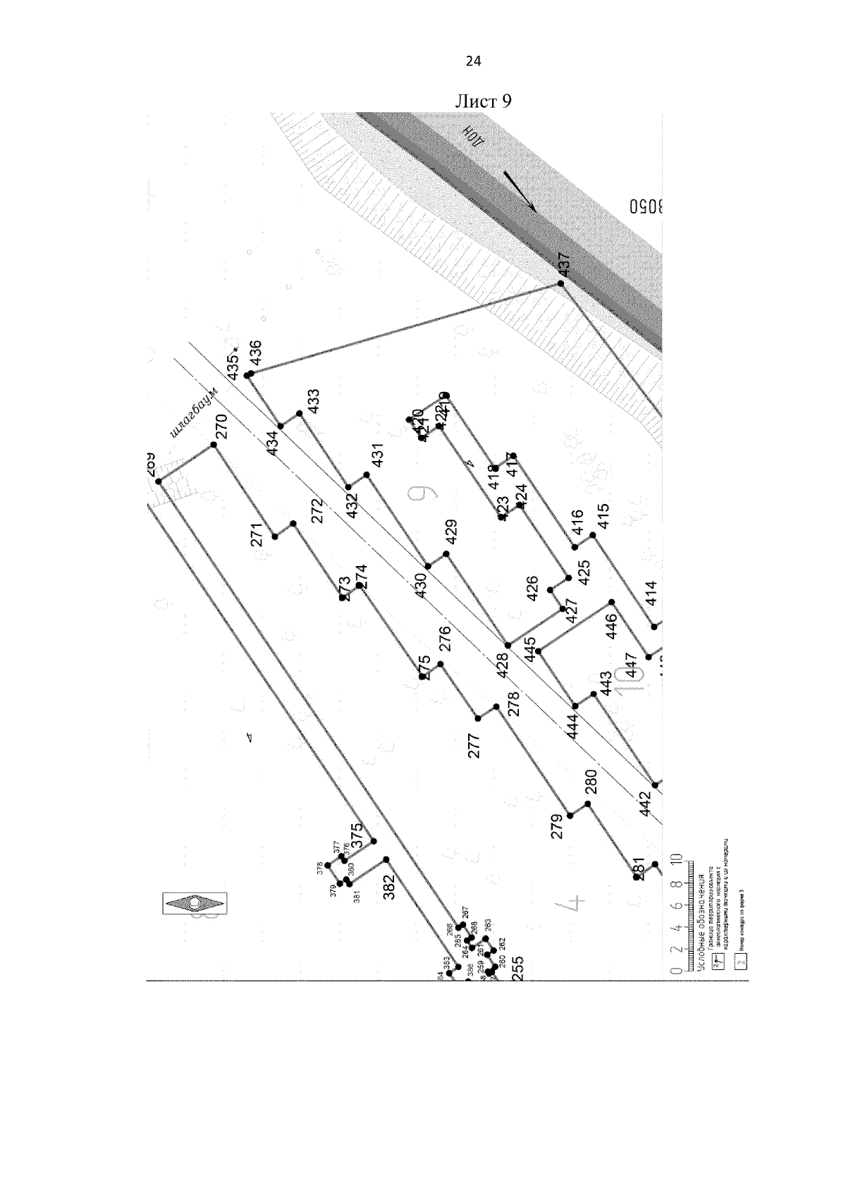
Постановление Комитета по охране объектов культурного наследия Ростовской области от 26.01.2026 № 18
"О внесении изменений в постановление комитета по охране объектов культурного наследия Ростовской области от 14.12.2020 № 20/01-01/5194"
(Зарегистрирован 26.01.2026 № 18)
Номер опубликования: 6101202601290002
Дата опубликования: 29.01.2026
Страница №24 из 28:
Увеличить