Официальное опубликование правовых актов
ОФИЦИАЛЬНОЕ ОПУБЛИКОВАНИЕ
Постановление Комитета по охране объектов культурного наследия Ростовской области от 04.03.2026 № 86
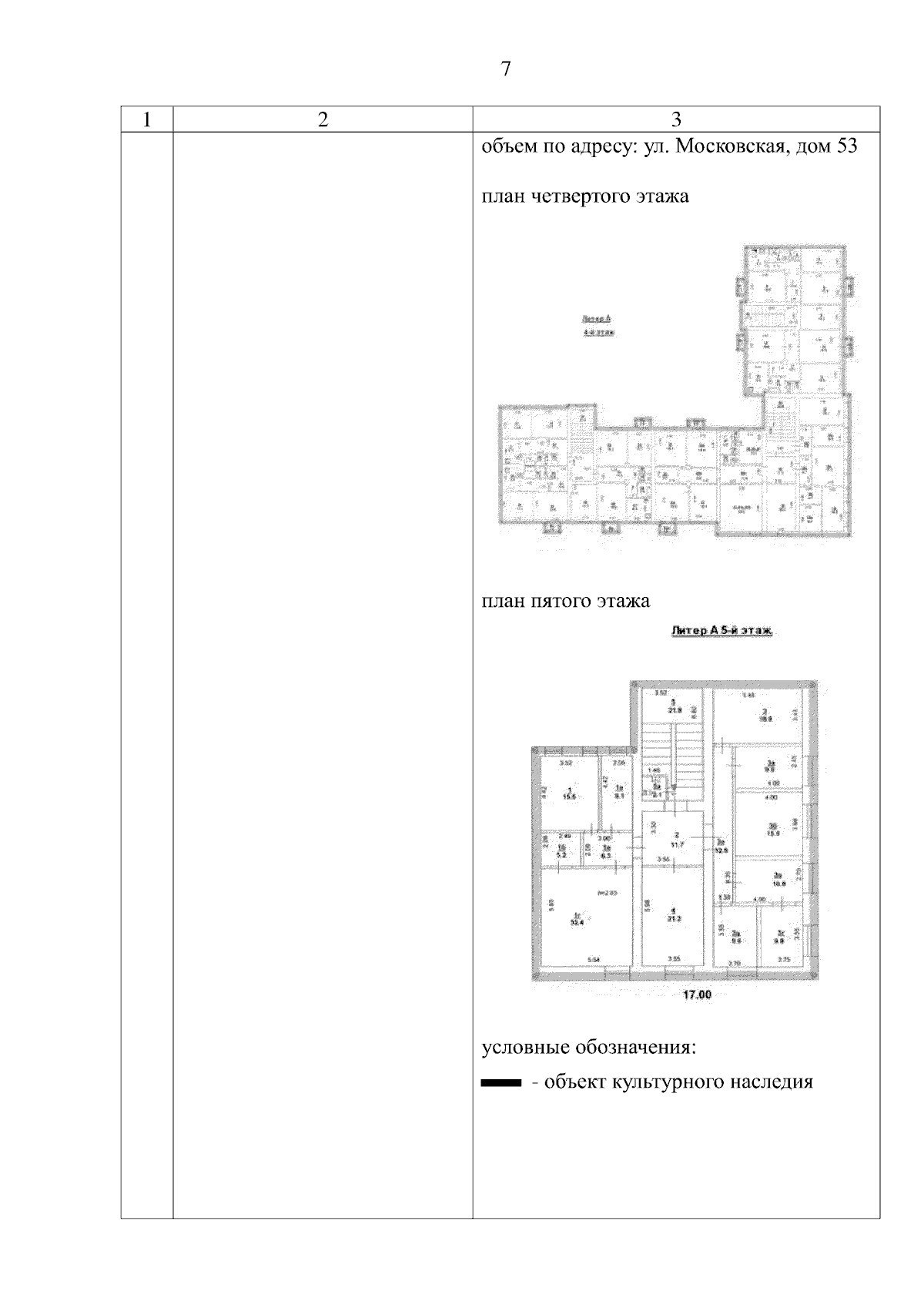
"Об утверждении предмета охраны объекта культурного наследия регионального значения (памятника) "Дом треста "Кавэлектромонтаж", расположенного по адресу: Ростовская область, городской округ город Ростов-на-Дону, город Ростов-на-Дону, улица Московская, дом 53, улица Московская, дом 55"
(Зарегистрирован 04.03.2026 № 86)
Номер опубликования: 6101202603060002
Дата опубликования: 06.03.2026
Страница №7 из 33:
Увеличить