Официальное опубликование правовых актов
ОФИЦИАЛЬНОЕ ОПУБЛИКОВАНИЕ
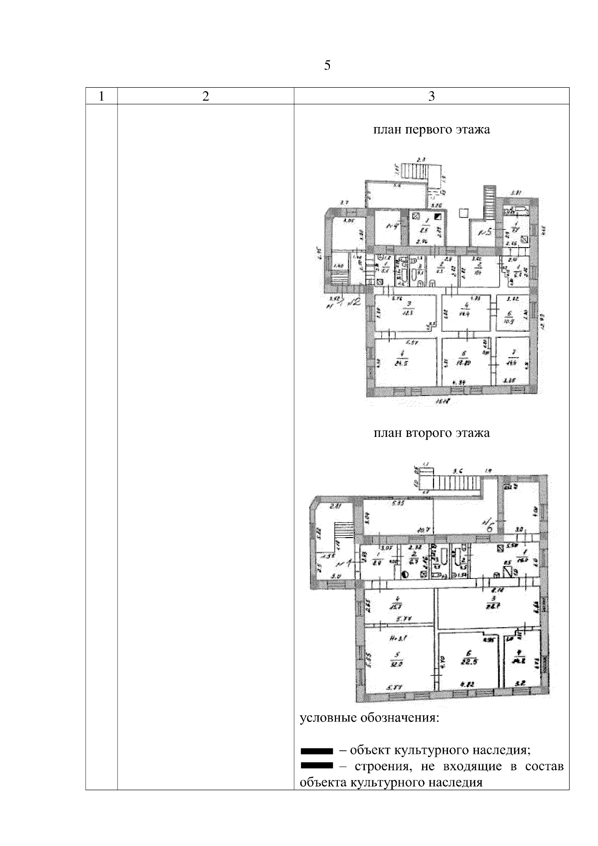
Постановление Комитета по охране объектов культурного наследия Ростовской области от 15.04.2026 № 237
"О включении выявленного объекта культурного наследия "Дом А.Н. Перестиани" в единый государственный реестр объектов культурного наследия (памятников истории и культуры) народов Российской Федерации в качестве объекта культурного наследия регионального значения (памятника) с наименованием "Дом А.Н. Перестиани", начало 1860-х гг., расположенного по адресу: Российская Федерация, Ростовская область, городской округ город Таганрог, город Таганрог, улица Греческая, дом 64, об утверждении предмета охраны, границ территории и требований к осуществлению деятельности в границах его территории"
(Зарегистрирован 15.04.2026 № 237)
Номер опубликования: 6101202604170012
Дата опубликования: 17.04.2026
Страница №5 из 16:
Увеличить