Официальное опубликование правовых актов
ОФИЦИАЛЬНОЕ ОПУБЛИКОВАНИЕ
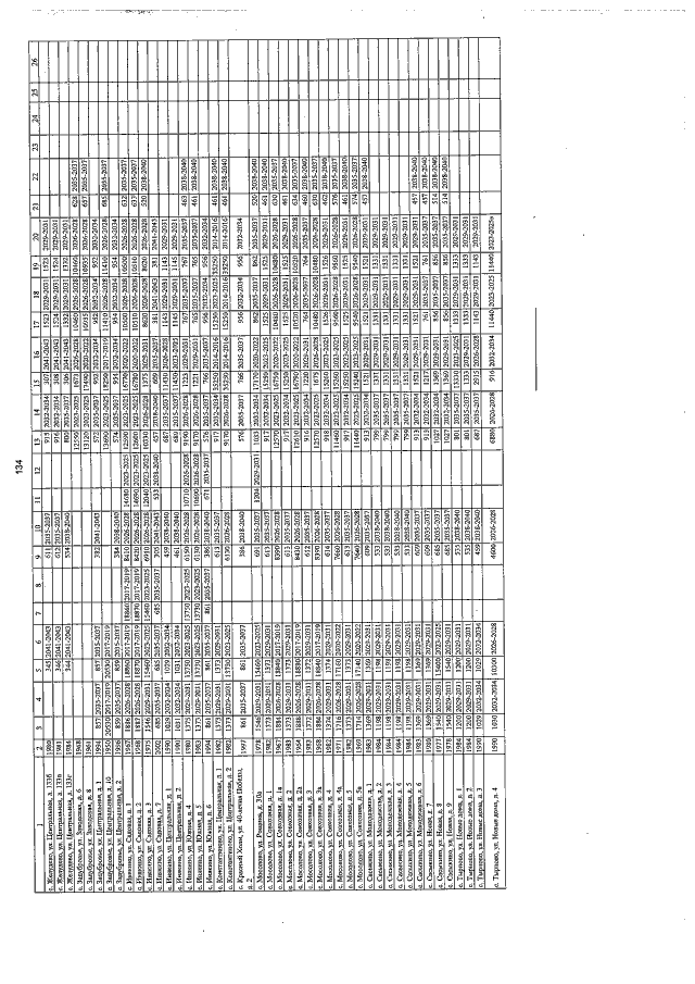
Постановление Правительства Рязанской области от 13.07.2016 № 158
"О внесении изменений в постановление Правительства Рязанской области от 12.02.2014 № 26 "Об утверждении региональной программы капитального ремонта общего имущества в многоквартирных домах" (в редакции постановлений Правительства Рязанской области от 15.10.2014 № 293, от 11.06.2015 № 140)"
Номер опубликования: 6200201607180003
Дата опубликования: 18.07.2016
Страница №135 из 135:
Увеличить