Официальное опубликование правовых актов
ОФИЦИАЛЬНОЕ ОПУБЛИКОВАНИЕ
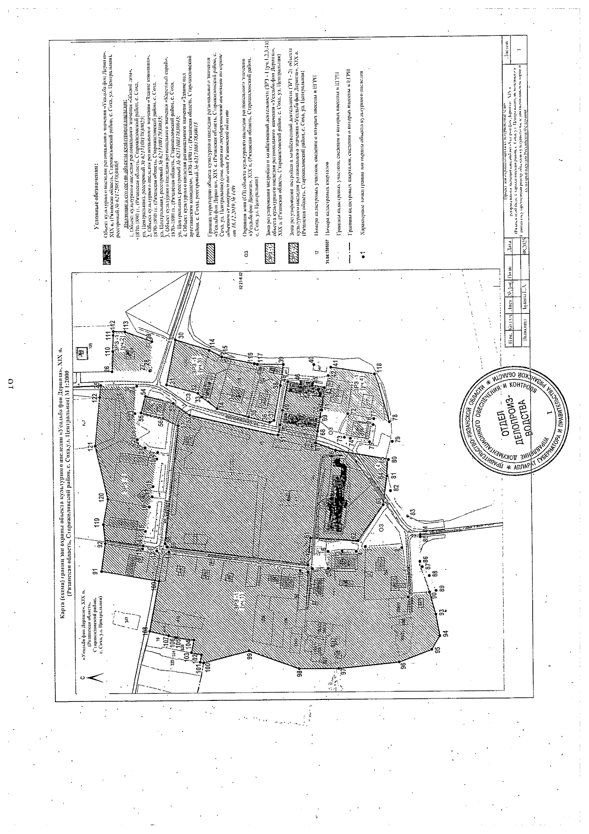
Постановление Правительства Рязанской области от 03.03.2026 № 56
"Об установлении зон охраны объекта культурного наследия регионального значения "Усадьба фон Дервиза", XIX в. и об утверждении требований к градостроительным регламентам в границах территорий данных зон"
Номер опубликования: 6200202603060005
Дата опубликования: 06.03.2026
Страница №18 из 23:
Увеличить