Официальное опубликование правовых актов
ОФИЦИАЛЬНОЕ ОПУБЛИКОВАНИЕ
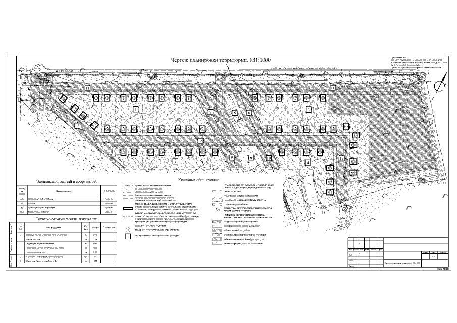
Постановление Главного управления архитектуры и градостроительства Рязанской области от 13.12.2019 № 436-п
"Об утверждении проекта планировки территории и проекта межевания территории малоэтажной жилой застройки площадью 11,75 га в р.п. Пронск (ул. Молодежная) Пронского муниципального района Рязанской области"
Номер опубликования: 6201201912180001
Дата опубликования: 18.12.2019
Страница №19 из 46:
Увеличить