Официальное опубликование правовых актов
ОФИЦИАЛЬНОЕ ОПУБЛИКОВАНИЕ
Постановление Главного управления архитектуры и градостроительства Рязанской области от 28.02.2020 № 109-п
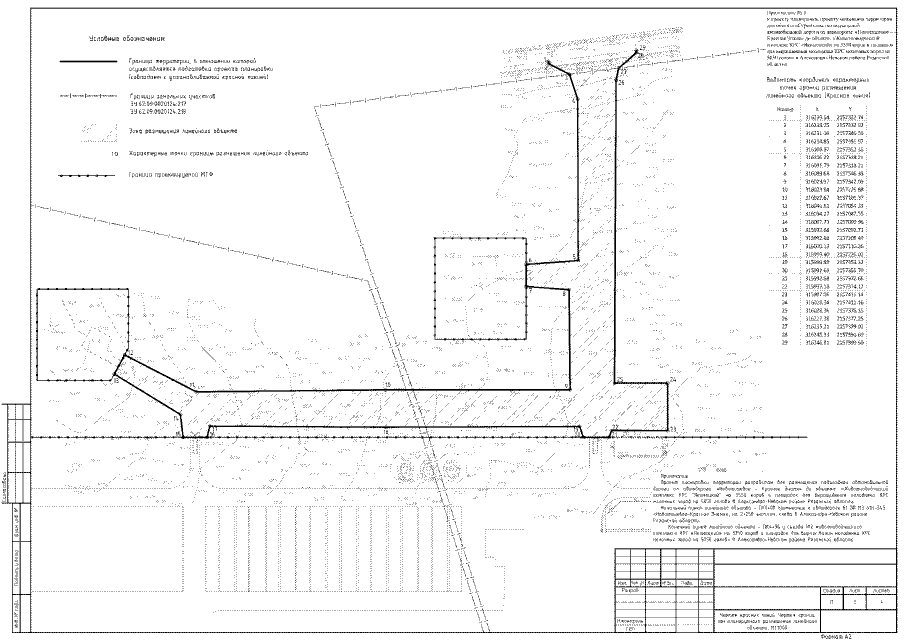
"Об утверждении проекта планировки, проекта межевания территории для объекта "Строительство подъездной автомобильной дороги от автодороги: "Новотишевое – Красное Знамя" до объекта: "Животноводческий комплекс КРС "Якимецкий" на 3550 коров и площадок для выращивания молодняка КРС молочных пород на 5050 голов" в Александро-Невском районе Рязанской области"
Номер опубликования: 6201202003050008
Дата опубликования: 05.03.2020
Страница №20 из 21:
Увеличить