Официальное опубликование правовых актов
ОФИЦИАЛЬНОЕ ОПУБЛИКОВАНИЕ
Постановление Главного управления архитектуры и градостроительства Рязанской области от 24.07.2020 № 360-п
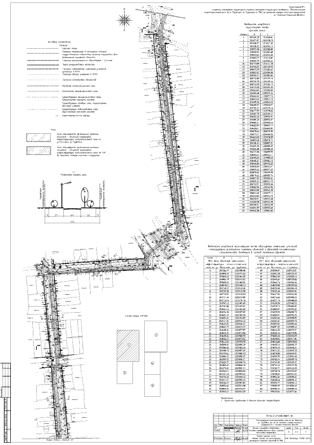
"Об утверждении проекта планировки территории и проекта межевания территории по объекту: "Реконструкция канализационной сети по ул. Песочная, ул. Трудовая, от ГНС до приемной камеры очистных сооружений в г. Скопине Рязанской области"
Номер опубликования: 6201202007290001
Дата опубликования: 29.07.2020
Страница №33 из 42:
Увеличить