Официальное опубликование правовых актов
ОФИЦИАЛЬНОЕ ОПУБЛИКОВАНИЕ
Постановление Главного управления архитектуры и градостроительства Рязанской области от 05.11.2020 № 783-п
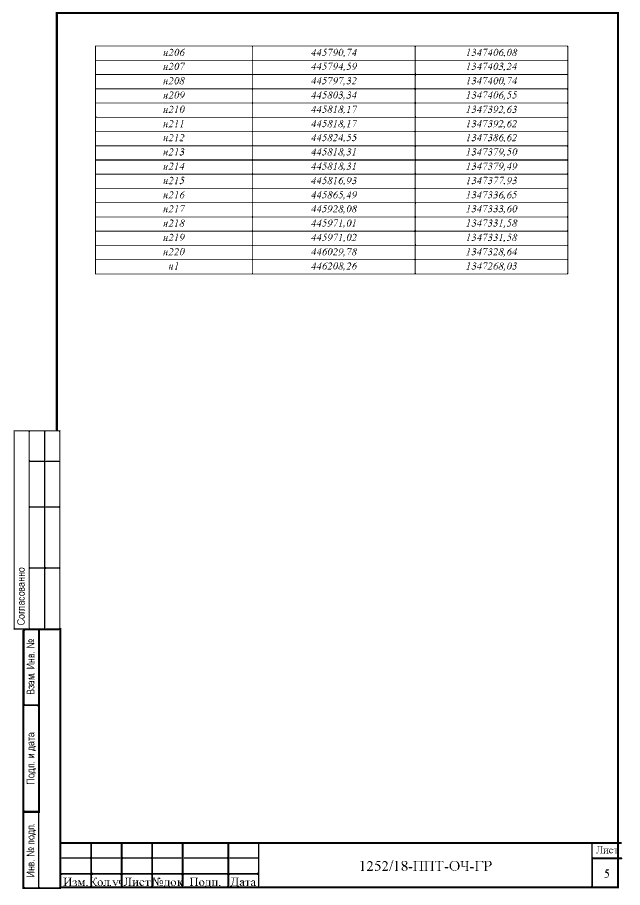
"Об утверждении проекта планировки территории и проекта межевания территории линейного объекта: "Распределительный газопровод для газоснабжения 105 жилых домов в д. Багданово Рязанского муниципального района Рязанской области (первая очередь строительства)"
Номер опубликования: 6201202011100021
Дата опубликования: 10.11.2020
Страница №41 из 51:
Увеличить