Официальное опубликование правовых актов
ОФИЦИАЛЬНОЕ ОПУБЛИКОВАНИЕ
Постановление Главного управления архитектуры и градостроительства Рязанской области от 13.10.2021 № 457-п
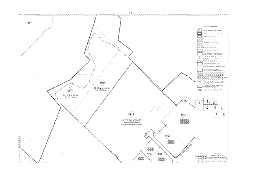
"Об утверждении документации "Проект изменений в проект межевания территории, утвержденный постановлением главного управления архитектуры и градостроительства Рязанской области от 19.12.2019 № 470-п "Об утверждении проекта планировки территории, проекта межевания территории по объекту "Индустриальный (промышленный) парк "Рязанский", расположенный в пределах кадастрового квартала 62:15:0010130 на территории муниципального образования – Тюшевское сельское поселение Рязанского муниципального района Рязанской области"
Номер опубликования: 6201202110180009
Дата опубликования: 18.10.2021
Страница №100 из 109:
Увеличить