Официальное опубликование правовых актов
ОФИЦИАЛЬНОЕ ОПУБЛИКОВАНИЕ
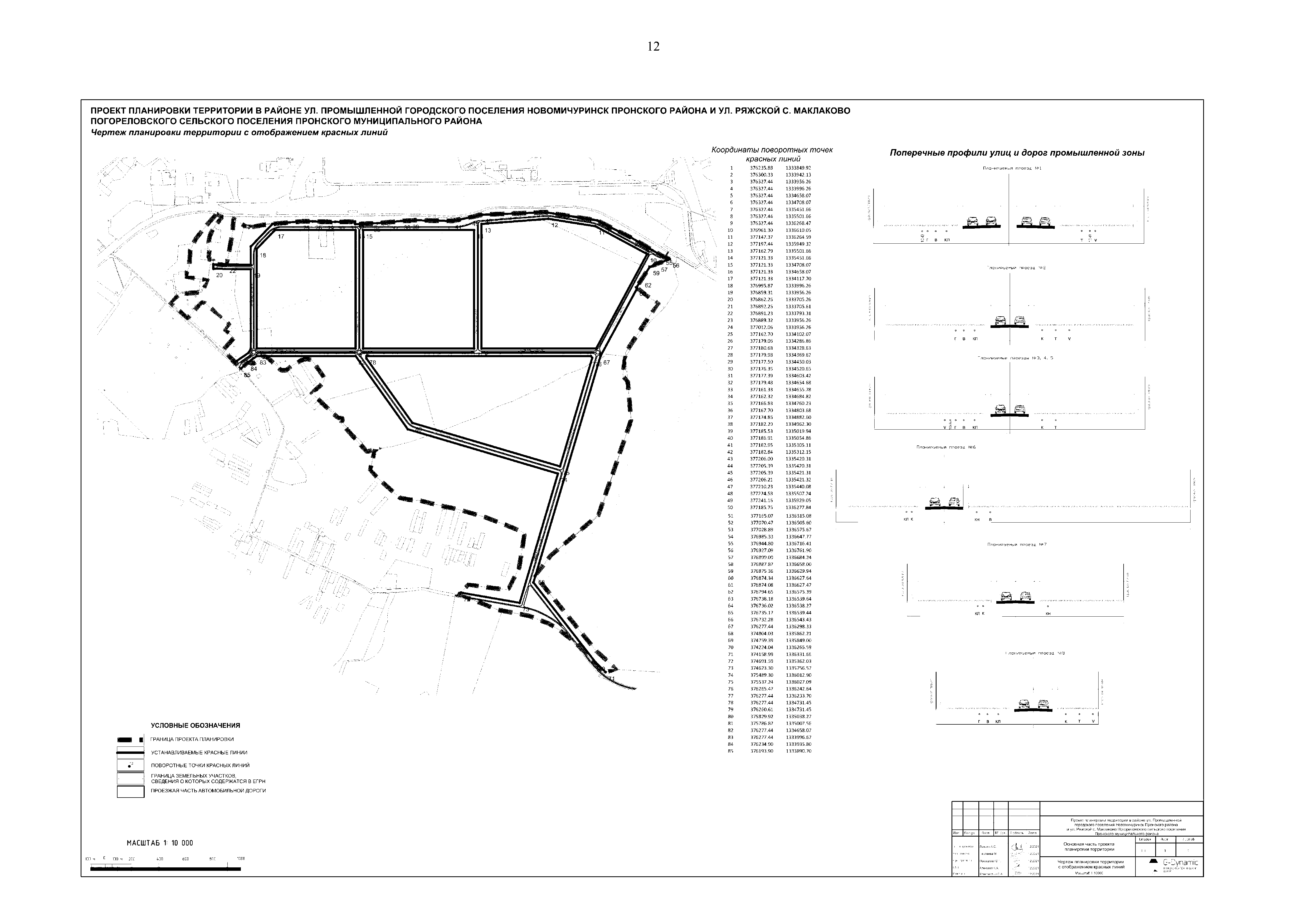
Постановление Главного управления архитектуры и градостроительства Рязанской области от 02.09.2022 № 474-п
"Об утверждении документации по планировке территории "Проект планировки территории в районе ул. Промышленной городского поселения Новомичуринск Пронского района и ул. Ряжской с. Маклаково Погореловского сельского поселения Пронского муниципального района"
Номер опубликования: 6201202209050001
Дата опубликования: 05.09.2022
Страница №14 из 14: