Официальное опубликование правовых актов
ОФИЦИАЛЬНОЕ ОПУБЛИКОВАНИЕ
Постановление Главного управления архитектуры и градостроительства Рязанской области от 06.06.2023 № 235-п
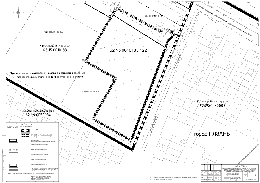
"Об утверждении изменений в проект планировки территории по объекту: «Индустриальный (промышленный) парк «Рязанский», расположенный в пределах кадастрового квартала 62:15:0010130 на территории муниципального образования – Тюшевское сельское поселение Рязанского муниципального района Рязанской области»"
(Зарегистрирован 07.06.2023 № 448)
Номер опубликования: 6201202306090001
Дата опубликования: 09.06.2023
Страница №15 из 16:
Увеличить