Официальное опубликование правовых актов
ОФИЦИАЛЬНОЕ ОПУБЛИКОВАНИЕ
Постановление Главного управления архитектуры и градостроительства Рязанской области от 28.10.2025 № 929-п
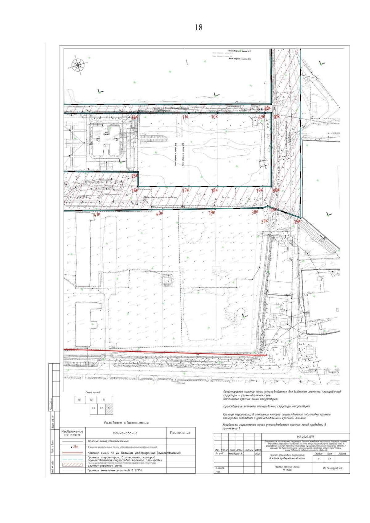
"Об утверждении документации по планировке территории (проект планировки территории и проект межевания территории) линейного объекта для размещения улично-дорожной сети в Дядьковском сельском поселении Рязанского муниципального района Рязанской области в границах до Муромского шоссе, улицы Большая городского округа город Рязань, улицы Совхозная, северной границы с. Дядьково"
(Зарегистрирован 28.10.2025 № 1323)
Номер опубликования: 6201202510310010
Дата опубликования: 31.10.2025
Страница №20 из 58:
Увеличить