Официальное опубликование правовых актов
ОФИЦИАЛЬНОЕ ОПУБЛИКОВАНИЕ
Постановление Главного управления архитектуры и градостроительства Рязанской области от 25.11.2025 № 1023-п
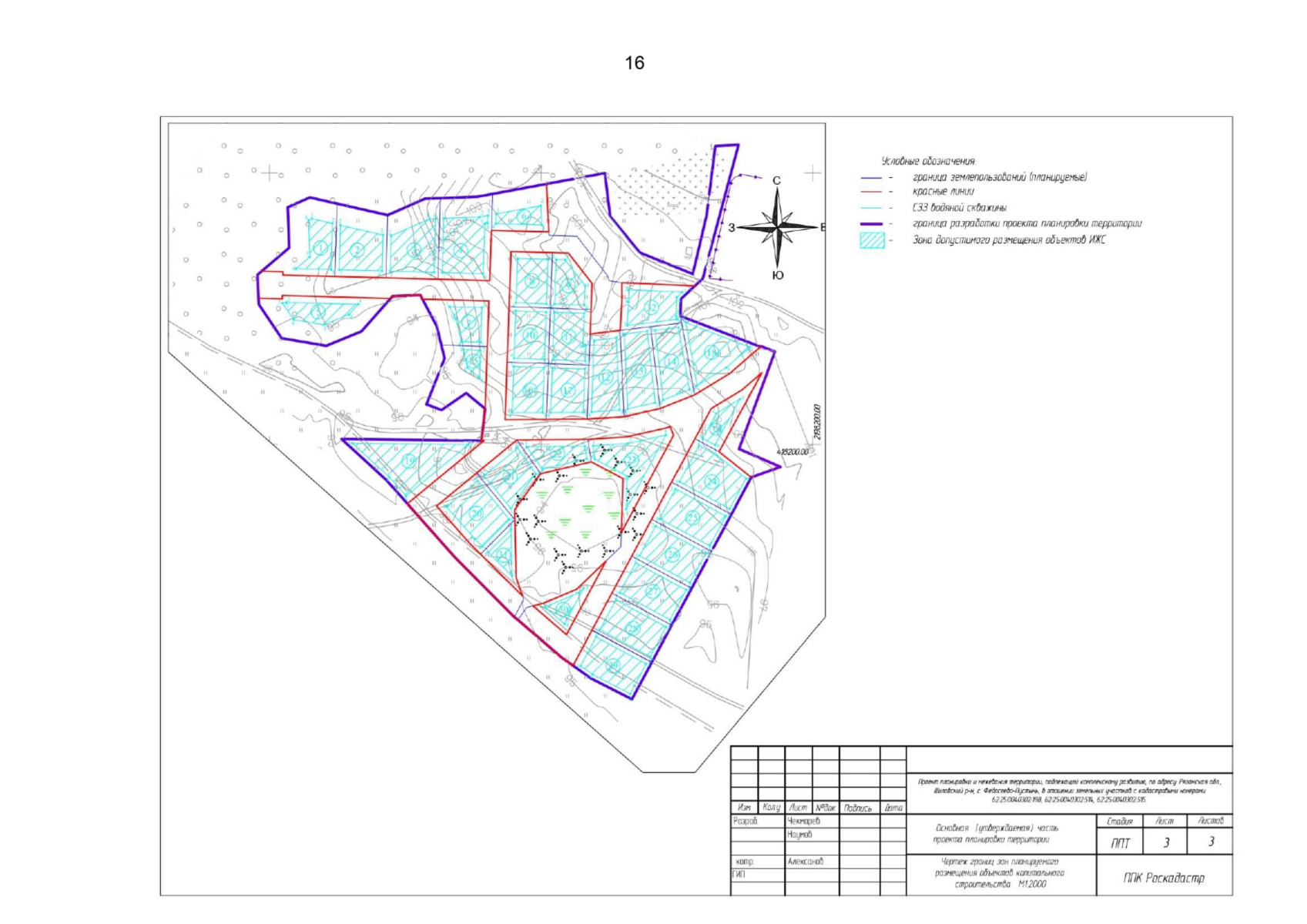
"Об утверждении документации по планировке территории (проекта планировки территории и проекта межевания территории), подлежащей комплексному развитию, по адресу: Рязанская обл., Шиловский р-н, с. Федосеево-Пустынь, в отношении земельных участков с кадастровыми номерами: 62:25:0040302:198, 62:25:0040302:514, 62:25:0040302:515"
(Зарегистрирован 27.11.2025 № 1465)
Номер опубликования: 6201202512030007
Дата опубликования: 03.12.2025
Страница №18 из 32:
Увеличить