Официальное опубликование правовых актов
ОФИЦИАЛЬНОЕ ОПУБЛИКОВАНИЕ
Постановление Правительства Саратовской области от 23.01.2018 № 27-П
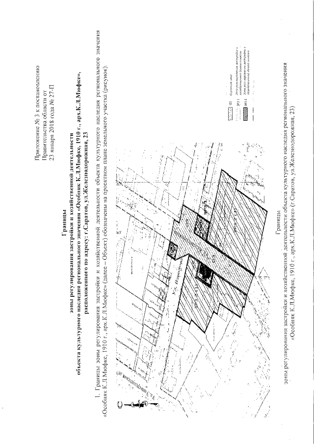
"Об утверждении зон охраны объекта культурного наследия регионального значения "Особняк К.Л.Мюфке, 1910 г., арх.К.Л.Мюфке", расположенного по адресу: г.Саратов, ул.Железнодорожная, 23"
Номер опубликования: 6400201801260010
Дата опубликования: 26.01.2018
Страница №8 из 16:
Увеличить