Официальное опубликование правовых актов
ОФИЦИАЛЬНОЕ ОПУБЛИКОВАНИЕ
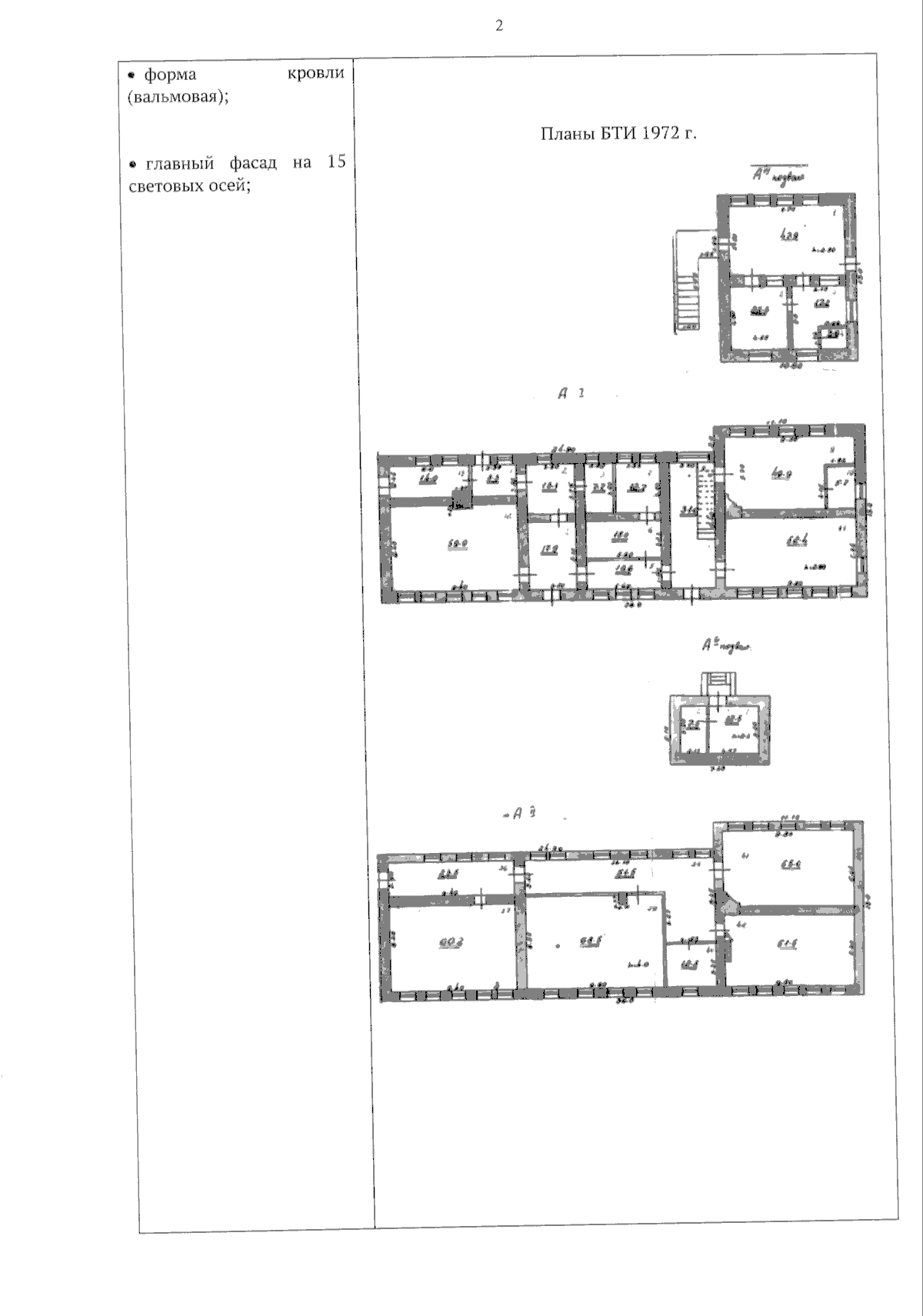
Приказ Комитета культурного наследия Саратовской области от 10.07.2025 № 01-04/225
"Об утверждении предмета охраны объекта культурного наследия регионального значения, расположенного по адресу: Саратовская область, г. Вольск, ул. Струина, 2"
(Зарегистрирован 11.07.2025 № 25-2025-1-1103)
Номер опубликования: 6401202507180010
Дата опубликования: 18.07.2025
Страница №4 из 7:
Увеличить