Официальное опубликование правовых актов
ОФИЦИАЛЬНОЕ ОПУБЛИКОВАНИЕ
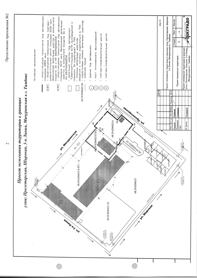
Приказ Управления архитектуры администрации Тамбовской области от 12.12.2016 № 33
"Об утверждении проекта планировки и проекта межевания территории в границах улиц: Пролетарская, Мичуринская, 3-я Линия, Широкая города Тамбова, Тамбовской области"
Номер опубликования: 6801201612160023
Дата опубликования: 16.12.2016
Страница №12 из 14:
Увеличить