Официальное опубликование правовых актов
ОФИЦИАЛЬНОЕ ОПУБЛИКОВАНИЕ
Приказ Министерства экологии и природных ресурсов Тамбовской области от 15.04.2026 № 68
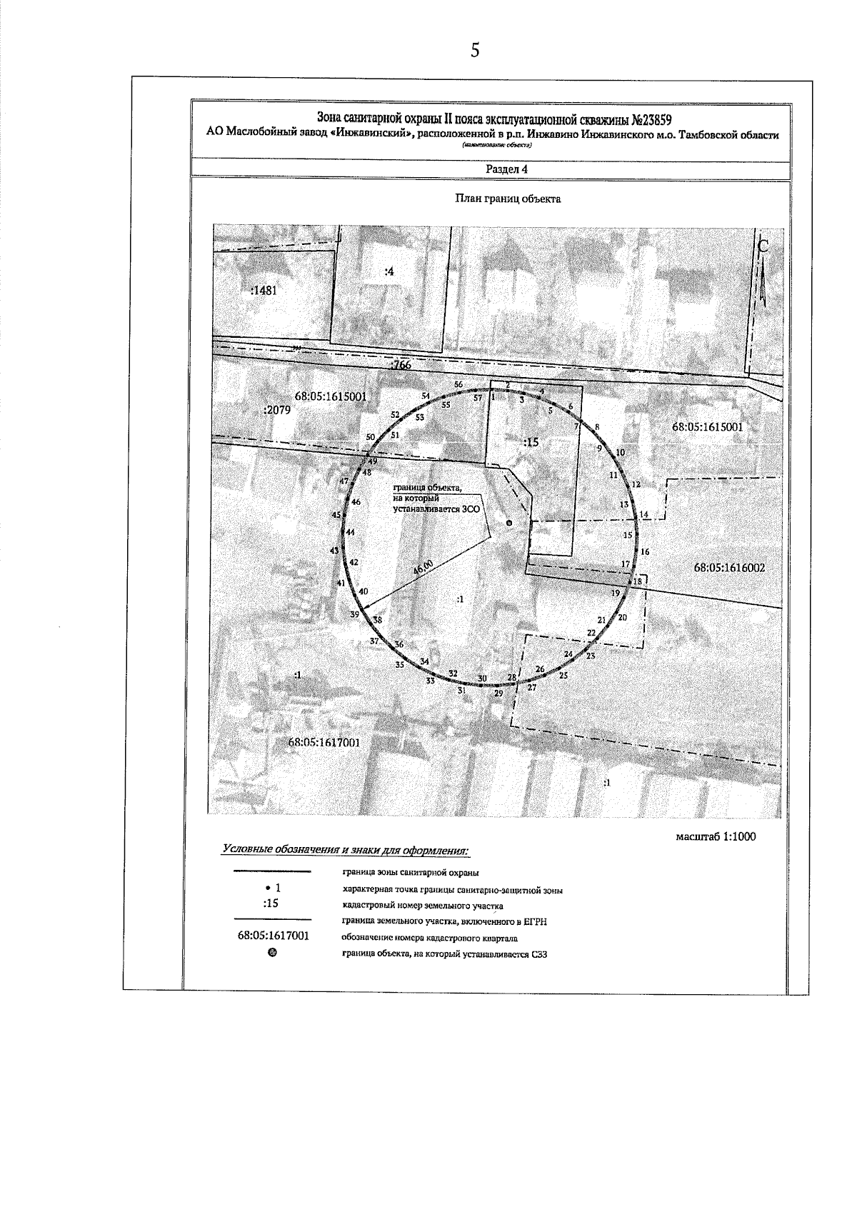
"Об установлении границ и режима зон санитарной охраны действующего водозабора акционерного общества "Маслобойный завод "Инжавинский"
(Зарегистрирован 15.04.2026 № 68)
Номер опубликования: 6801202604170001
Дата опубликования: 17.04.2026
Страница №11 из 20:
Увеличить