Официальное опубликование правовых актов
ОФИЦИАЛЬНОЕ ОПУБЛИКОВАНИЕ
Приказ Главного управления по государственной охране объектов культурного наследия Тверской области от 27.11.2025 № 241-нп
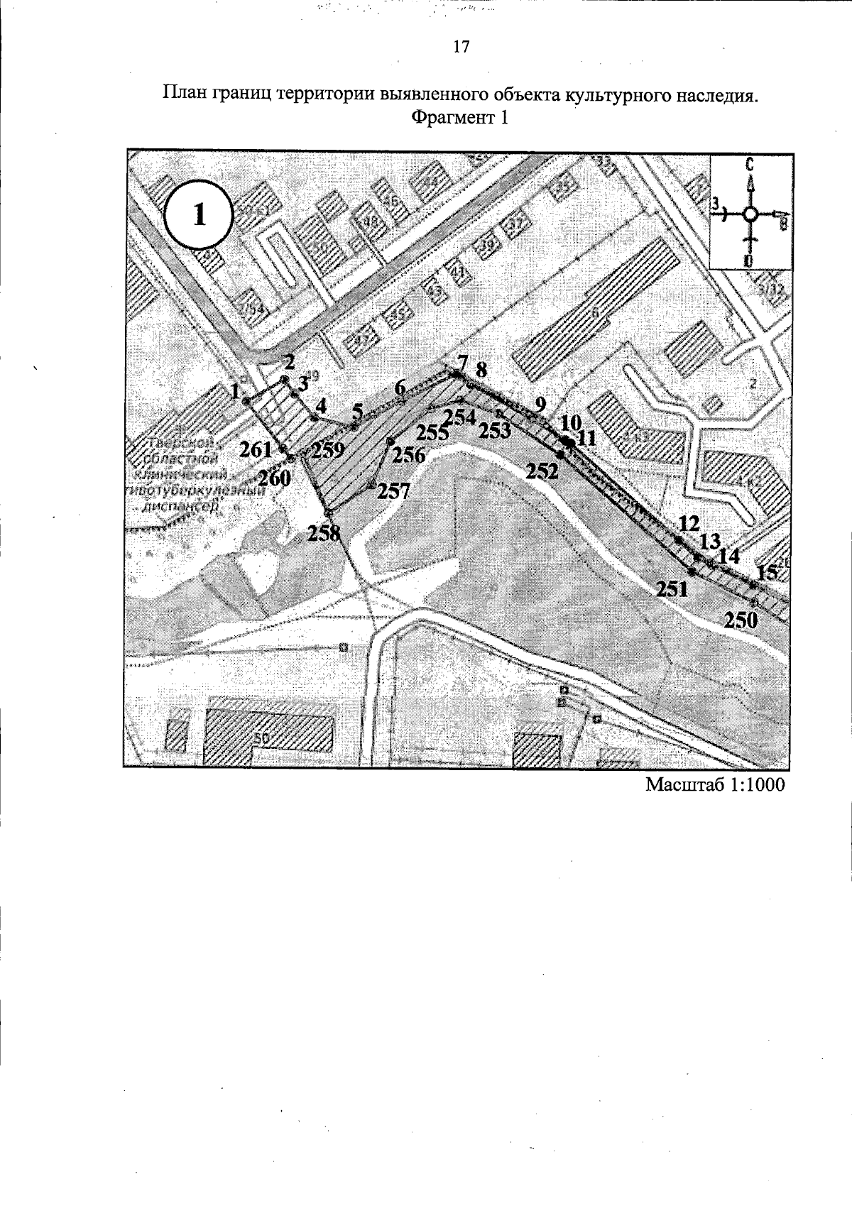
"Об утверждении границ территории выявленного объекта культурного наследия "Защитное противопаводковое сооружение - Головинский вал, 1866 г.", расположенного по адресу: Тверская область, город Тверь, левый берег Тьмаки от Беляковского переулка до ее устья, и далее по правому берегу Волги (современные Краснофлотская набережная, улица К. Маркса), заканчиваясь на берегу Тьмаки"
(Зарегистрирован 28.11.2025 № 3722527)
Номер опубликования: 6901202511280001
Дата опубликования: 28.11.2025
Страница №17 из 26:
Увеличить