Официальное опубликование правовых актов
ОФИЦИАЛЬНОЕ ОПУБЛИКОВАНИЕ
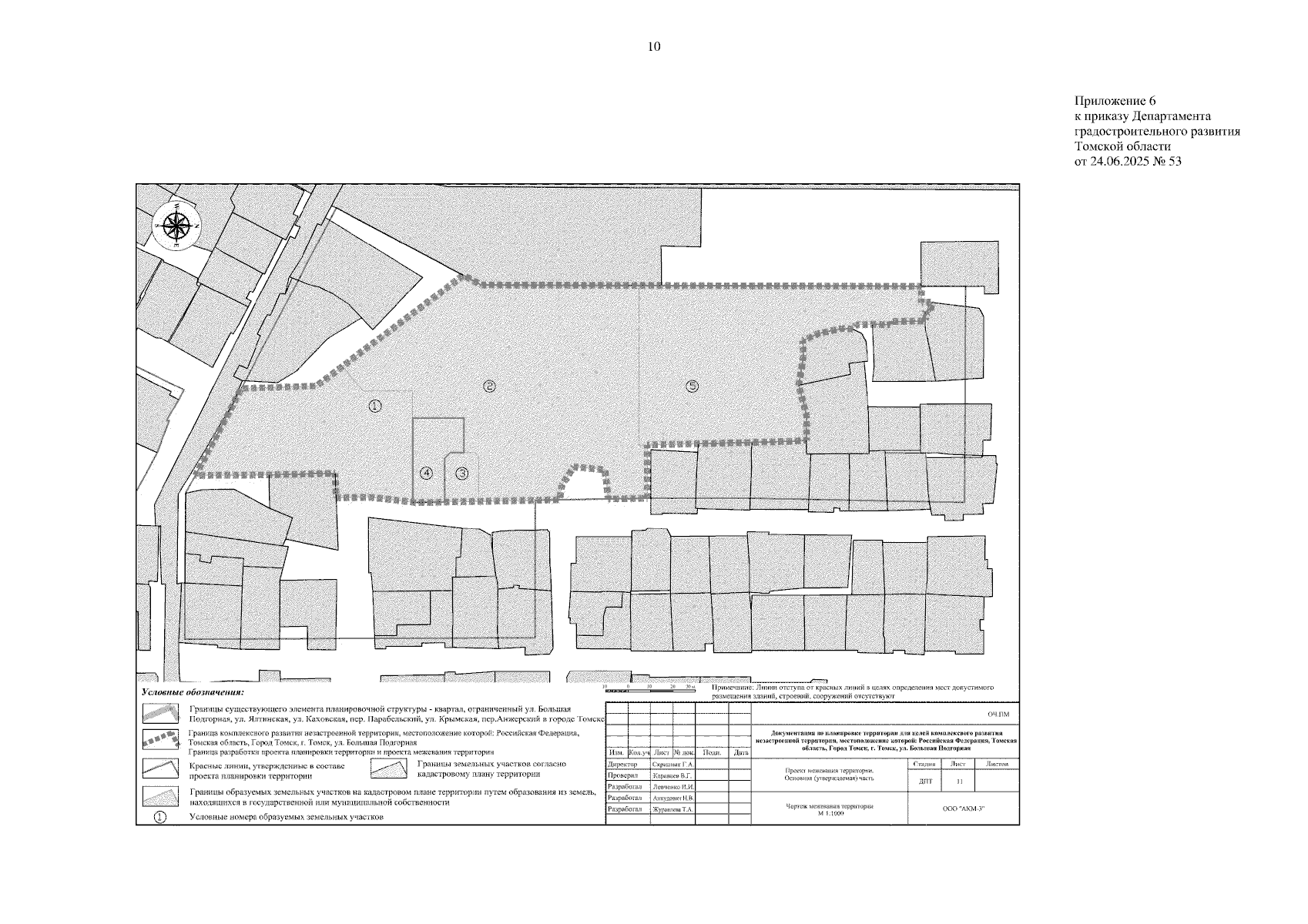
Приказ Департамента градостроительного развития Томской области от 24.06.2025 № 53
"Об утверждении проекта планировки и проекта межевания территории для целей комплексного развития незастроенной территории, местоположение которой: Российская Федерация, Томская область, Город Томск, г. Томск, ул. Большая Подгорная"
(Зарегистрирован 26.06.2025 № 724-91/2025)
Номер опубликования: 7001202506270008
Дата опубликования: 27.06.2025
Страница №10 из 15:
Увеличить