Официальное опубликование правовых актов
ОФИЦИАЛЬНОЕ ОПУБЛИКОВАНИЕ
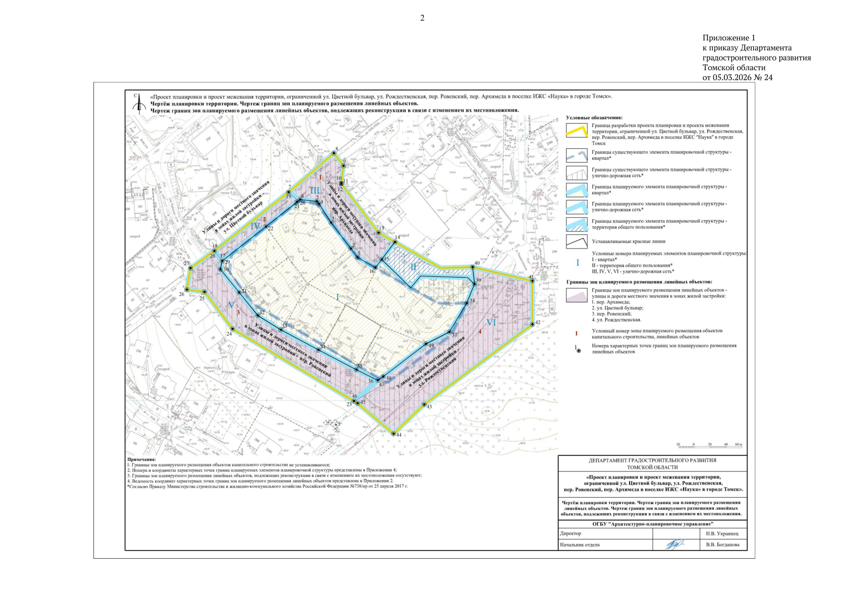
Приказ Департамента градостроительного развития Томской области от 05.03.2026 № 24
"Об утверждении проекта планировки и проекта межевания территории, ограниченной ул. Цветной бульвар, ул. Рождественская, пер. Ровенский, пер. Архимеда, в посёлке ИЖС "Наука" в городе Томске"
(Зарегистрирован 06.03.2026 № 268-91/2026)
Номер опубликования: 7001202603100001
Дата опубликования: 10.03.2026
Страница №2 из 42: