Официальное опубликование правовых актов
ОФИЦИАЛЬНОЕ ОПУБЛИКОВАНИЕ
Приказ Инспекции Тульской области по государственной охране объектов культурного наследия от 22.11.2023 № 112
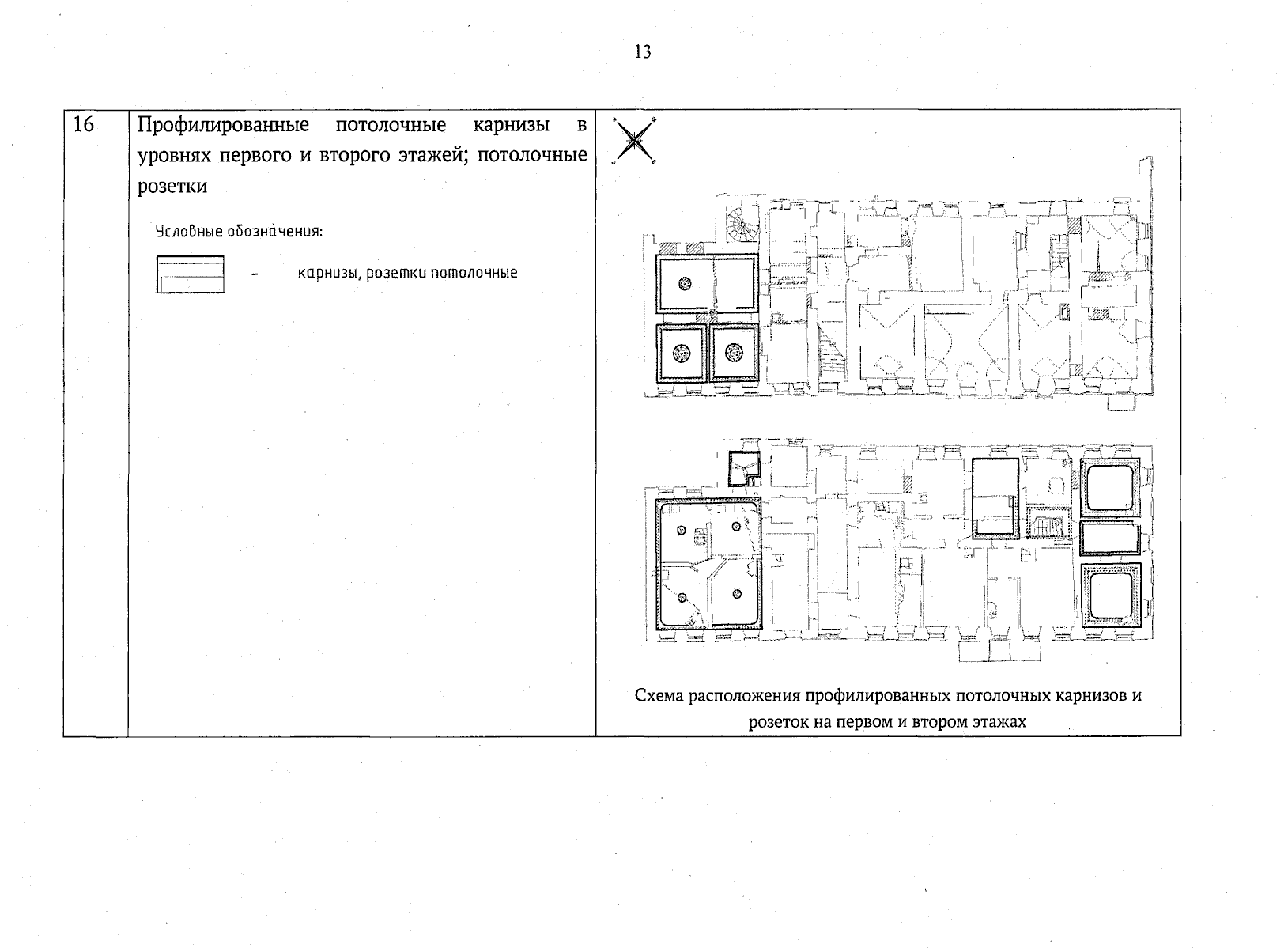
"Об утверждении предмета охраны объекта культурного наследия регионального значения "Жилой дом Д.В. Лопатина", XVIII в., расположенного по адресу: Тульская область, г. Тула, ул. Менделеевская/Садовый переулок, д. 6/11, лит. А"
(Зарегистрирован 22.11.2023 № 112)
Номер опубликования: 7101202311290005
Дата опубликования: 29.11.2023
Страница №17 из 19:
Увеличить