Официальное опубликование правовых актов
ОФИЦИАЛЬНОЕ ОПУБЛИКОВАНИЕ
Постановление Правительства Ульяновской области от 28.03.2019 № 131-П
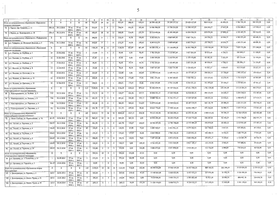
"Об утверждении областной адресной программы "Переселение граждан, проживающих на территории Ульяновской области, из многоквартирных домов, признанных до 1 января 2017 года аварийными и подлежащими сносу или реконструкции в связи с физическим износом в процессе их эксплуатации, в 2019-2025 годах"
Номер опубликования: 7300201904050005
Дата опубликования: 05.04.2019
Страница №38 из 43:
Увеличить