Официальное опубликование правовых актов
ОФИЦИАЛЬНОЕ ОПУБЛИКОВАНИЕ
Постановление Правительства Ульяновской области от 06.08.2019 № 381-П
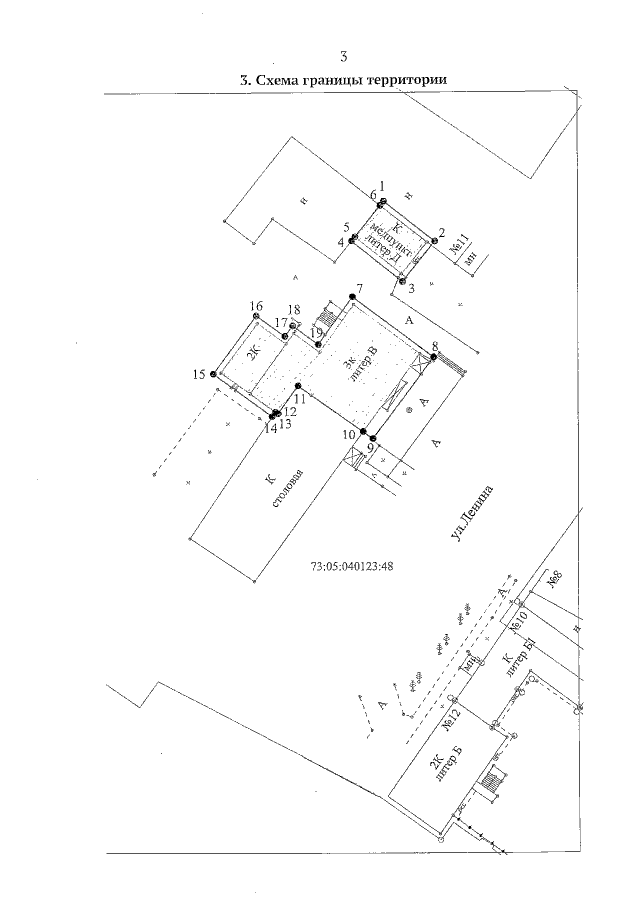
"Об утверждении границ и режима использования территорий объектов культурного наследия регионального значения (памятников истории и культуры) народов Российской Федерации регионального значения, расположенных на территории Ульяновской области"
Номер опубликования: 7300201908080007
Дата опубликования: 08.08.2019
Страница №41 из 71:
Увеличить