Распоряжение Комитета по государственному контролю, использованию и охране памятников истории и культуры от 07.11.2025 № 314-рп
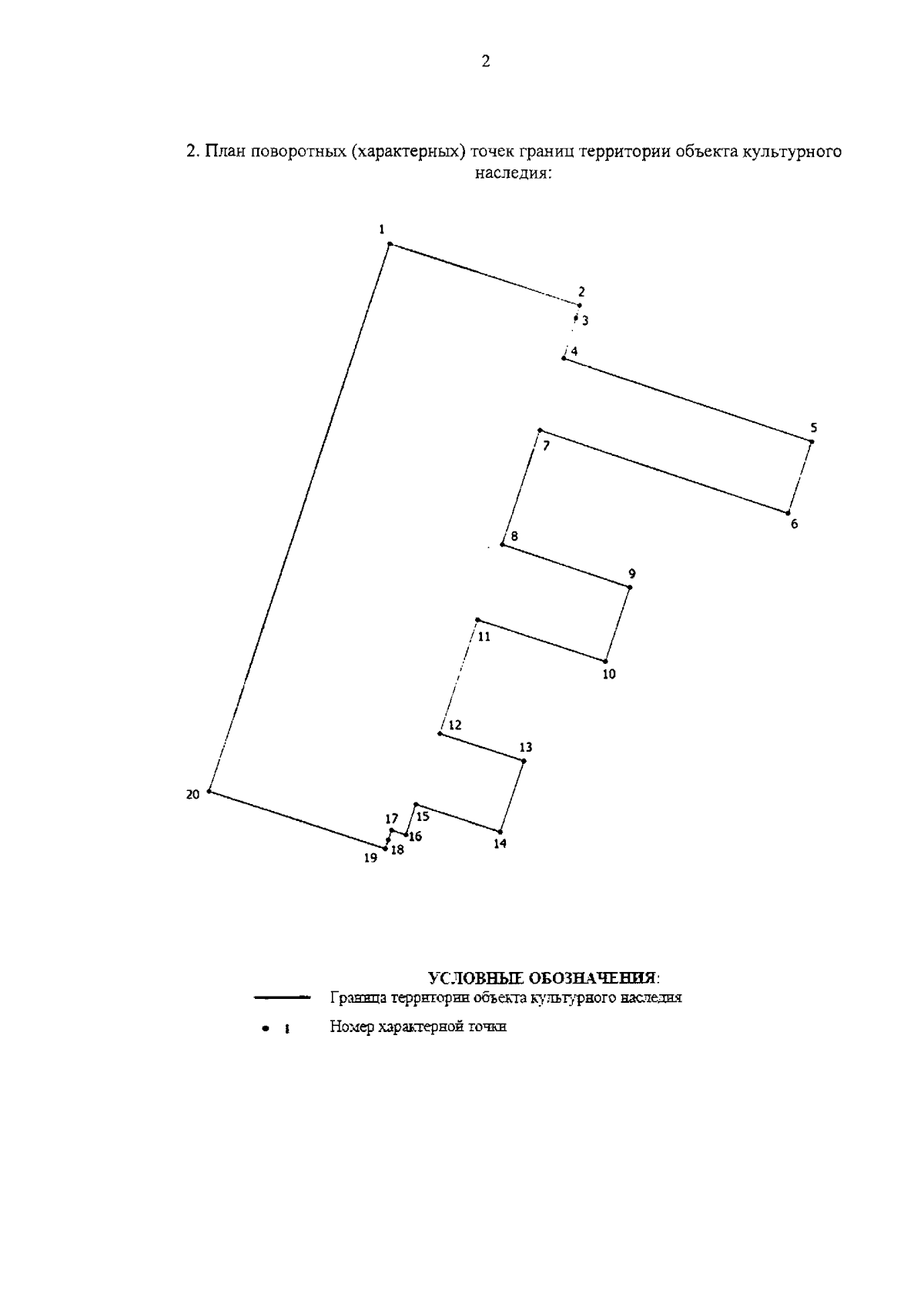
"О включении выявленного объекта культурного наследия в единый государственный реестр объектов культурного наследия (памятников истории и культуры) народов Российской Федерации в качестве объекта культурного наследия регионального значения "Гидротехнический институт им. Б.Е. Веденеева (лицевой корпус с примыкающими дворовыми флигелями)", об утверждении границ и режима использования территории объекта культурного наследия, об утверждении предмета охраны объекта культурного наследия"
(Зарегистрирован 10.11.2025 № 51206)
"О включении выявленного объекта культурного наследия в единый государственный реестр объектов культурного наследия (памятников истории и культуры) народов Российской Федерации в качестве объекта культурного наследия регионального значения "Гидротехнический институт им. Б.Е. Веденеева (лицевой корпус с примыкающими дворовыми флигелями)", об утверждении границ и режима использования территории объекта культурного наследия, об утверждении предмета охраны объекта культурного наследия"
(Зарегистрирован 10.11.2025 № 51206)
Номер опубликования: 7801202511130008
Дата опубликования:
13.11.2025
