Официальное опубликование правовых актов
ОФИЦИАЛЬНОЕ ОПУБЛИКОВАНИЕ
Распоряжение Комитета по государственному контролю, использованию и охране памятников истории и культуры от 23.12.2025 № 396-рп
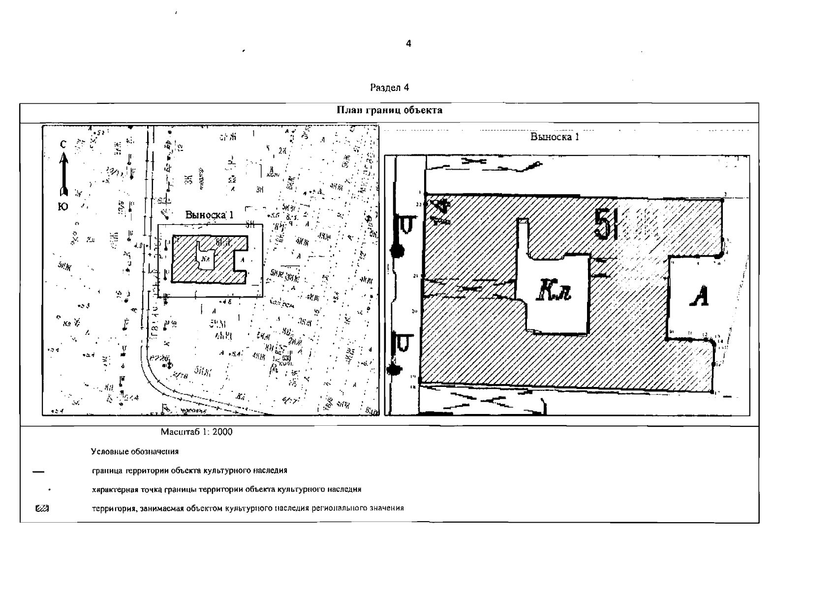
"О включении выявленного объекта культурного наследия в единый государственный реестр объектов культурного наследия (памятников истории и культуры) народов Российской Федерации в качестве объекта культурного наследия регионального значения "Дом Е.А. Адама - Семичевых (Санкт-Петербургский Столичный ломбард)", об утверждении границ и режима использования территории объекта культурного наследия, об утверждении предмета охраны объекта культурного наследия"
(Зарегистрирован 29.12.2025 № 51570)
Номер опубликования: 7801202512290060
Дата опубликования: 29.12.2025
Страница №6 из 40:
Увеличить