Официальное опубликование правовых актов
ОФИЦИАЛЬНОЕ ОПУБЛИКОВАНИЕ
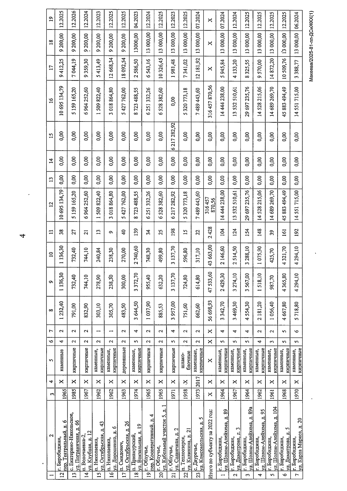
Постановление правительства Еврейской автономной области от 14.03.2025 № 79-пп
"О внесении изменения в краткосрочный план реализации региональной программы по проведению капитального ремонта общего имущества многоквартирных домов, расположенных на территории Еврейской автономной области, на 2023 – 2025 годы, утвержденный постановлением правительства Еврейской автономной области от 09.03.2023 № 111-пп"
Номер опубликования: 7900202503180003
Дата опубликования: 18.03.2025
Страница №5 из 22:
Увеличить