Официальное опубликование правовых актов
ОФИЦИАЛЬНОЕ ОПУБЛИКОВАНИЕ
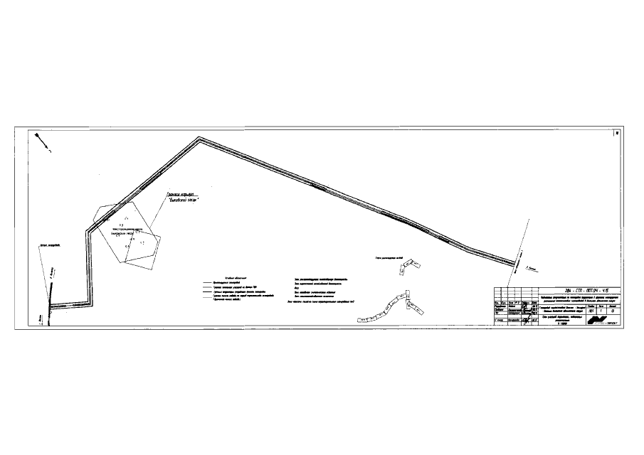
Постановление Администрации Ненецкого автономного округа от 25.07.2016 № 239-п
"Об утверждении документации по планировке территории в границах планируемого размещения межпоселковых газопроводов в Ненецком автономном округе"
Номер опубликования: 8300201608010002
Дата опубликования: 01.08.2016
Страница №31 из 56:
Увеличить