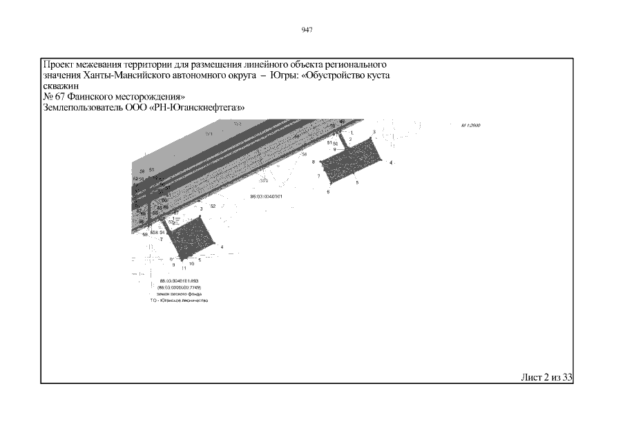
Постановление Правительства Ханты-Мансийского автономного округа - Югры от 11.03.2016 № 67-п
"Об утверждении документации по планировке территории для размещения линейных объектов регионального значения Ханты-Мансийского автономного округа – Югры и внесении изменений в некоторые постановления Правительства Ханты-Мансийского автономного округа – Югры"
"Об утверждении документации по планировке территории для размещения линейных объектов регионального значения Ханты-Мансийского автономного округа – Югры и внесении изменений в некоторые постановления Правительства Ханты-Мансийского автономного округа – Югры"
Номер опубликования: 8600201603160001
Дата опубликования:
16.03.2016
