Официальное опубликование правовых актов
ОФИЦИАЛЬНОЕ ОПУБЛИКОВАНИЕ
Постановление Правительства Ханты-Мансийского автономного округа - Югры от 05.08.2016 № 290-п
"Об утверждении документации по планировке территории для размещения линейных объектов регионального значения Ханты-Мансийского автономного округа – Югры и о внесении изменения в постановление Правительства Ханты-Мансийского автономного округа – Югры от 3 июля 2015 года № 201-п "Об утверждении документации по планировке территории для размещения линейных объектов регионального значения Ханты-Мансийского автономного округа – Югры"
Номер опубликования: 8600201608100010
Дата опубликования: 10.08.2016
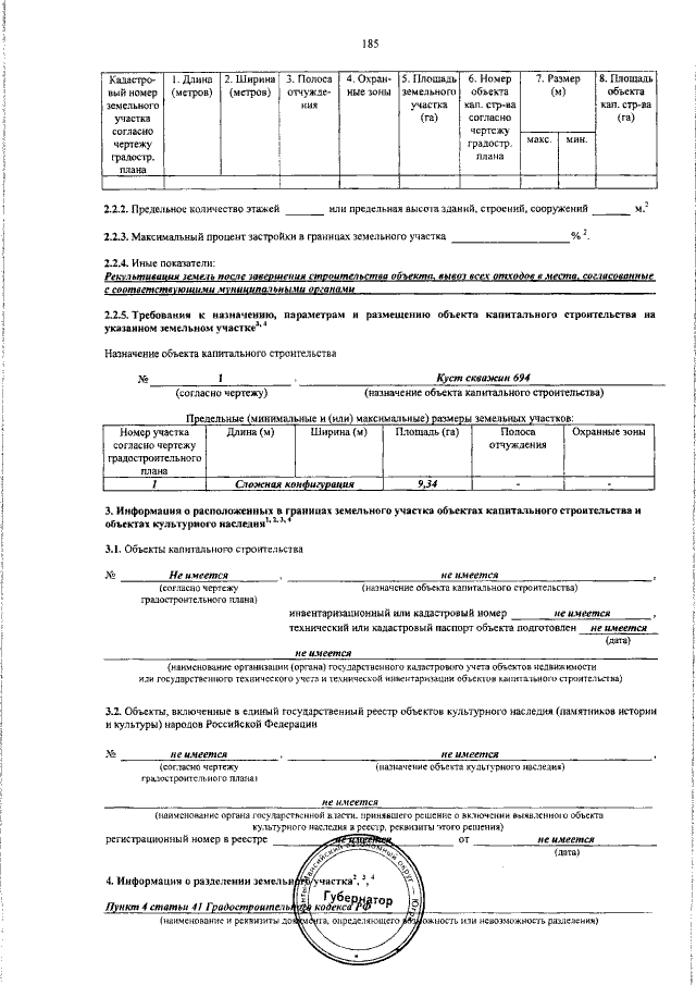
Страница №185 из 204:
Увеличить