Официальное опубликование правовых актов
ОФИЦИАЛЬНОЕ ОПУБЛИКОВАНИЕ
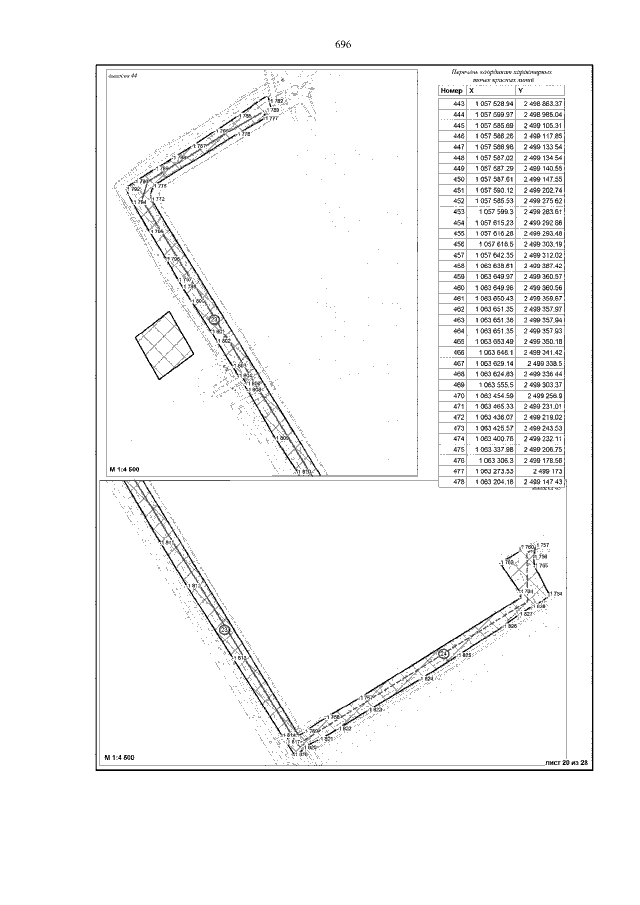
Приказ Департамента строительства Ханты-Мансийского автономного округа – Югры от 24.01.2019 № 2-нп
"Об утверждении документации по планировке территории и внесении изменений в некоторые приказы Департамента строительства Ханты-Мансийского автономного округа – Югры"
(Зарегистрирован 29.01.2019 № 4260)
Номер опубликования: 8601201902050002
Дата опубликования: 05.02.2019
Страница №696 из 1002:
Увеличить