Официальное опубликование правовых актов
ОФИЦИАЛЬНОЕ ОПУБЛИКОВАНИЕ
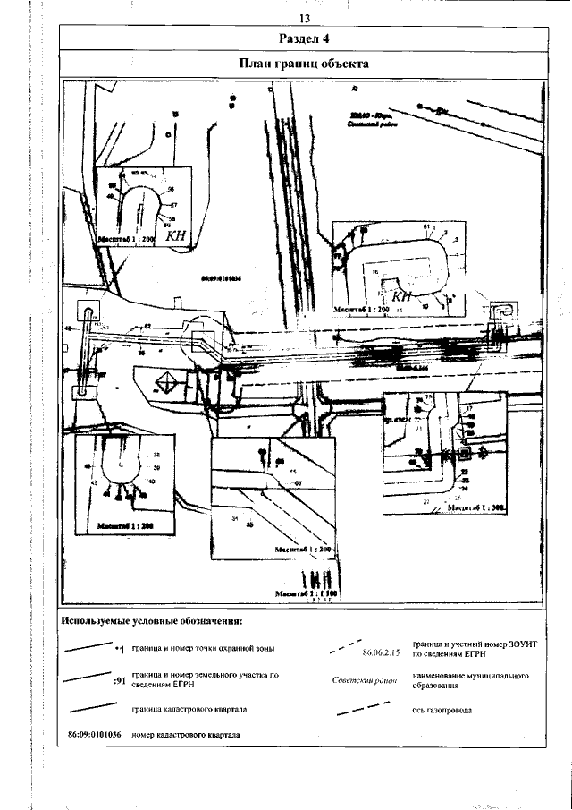
Приказ Департамента по управлению государственным имуществом Ханты-Мансийского автономного округа - Югры от 17.03.2021 № 6-нп
"Об утверждении границ охранных зон газораспределительных сетей объектов, находящихся в собственности публичного акционерного общества "Газпром" и общества с ограниченной ответственностью "Газпром трансгаз Югорск", и наложении ограничений (обременений) на входящие в них земельные участки"
(Зарегистрирован 22.03.2021 № 5414)
Номер опубликования: 8601202103260004
Дата опубликования: 26.03.2021
Страница №13 из 90:
Увеличить