Официальное опубликование правовых актов
ОФИЦИАЛЬНОЕ ОПУБЛИКОВАНИЕ
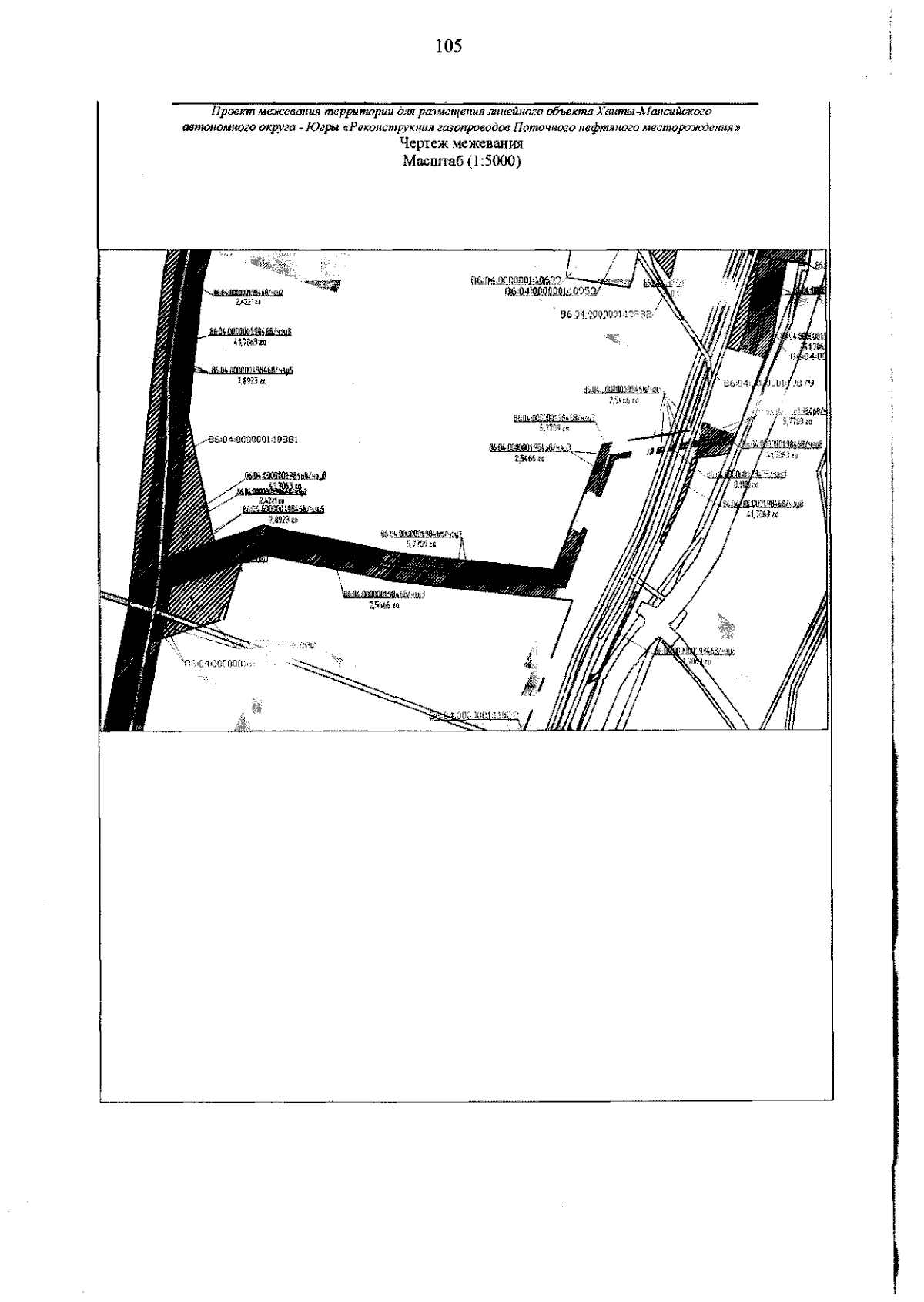
Приказ Департамента пространственного развития и архитектуры Ханты-Мансийского автономного округа - Югры от 27.04.2024 № 27-нп
(Зарегистрирован 03.05.2024 № 7531 )
Номер опубликования: 8601202405060002
Дата опубликования: 06.05.2024
Страница №105 из 229:
Увеличить