Официальное опубликование правовых актов
ОФИЦИАЛЬНОЕ ОПУБЛИКОВАНИЕ
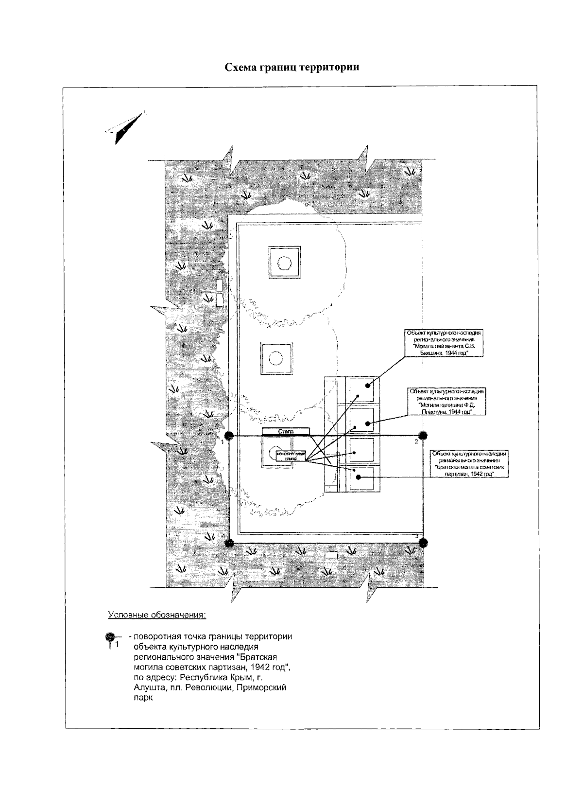
Приказ Министерства культуры Республики Крым от 26.12.2023 № 635-окн
"Об утверждении границ территории, режимов использования земель в границах территории объекта культурного наследия регионального значения "Братская могила советских партизан", 1942 год, расположенного по адресу: Республика Крым, г. Алушта, пл. Революции, Приморский парк"
(Зарегистрирован 27.12.2023 № 1119)
Номер опубликования: 9101202401010013
Дата опубликования: 01.01.2024
Страница №4 из 6:
Увеличить