Официальное опубликование правовых актов
ОФИЦИАЛЬНОЕ ОПУБЛИКОВАНИЕ
Приказ Министерства культуры Республики Крым от 12.02.2025 № 81-ОКН
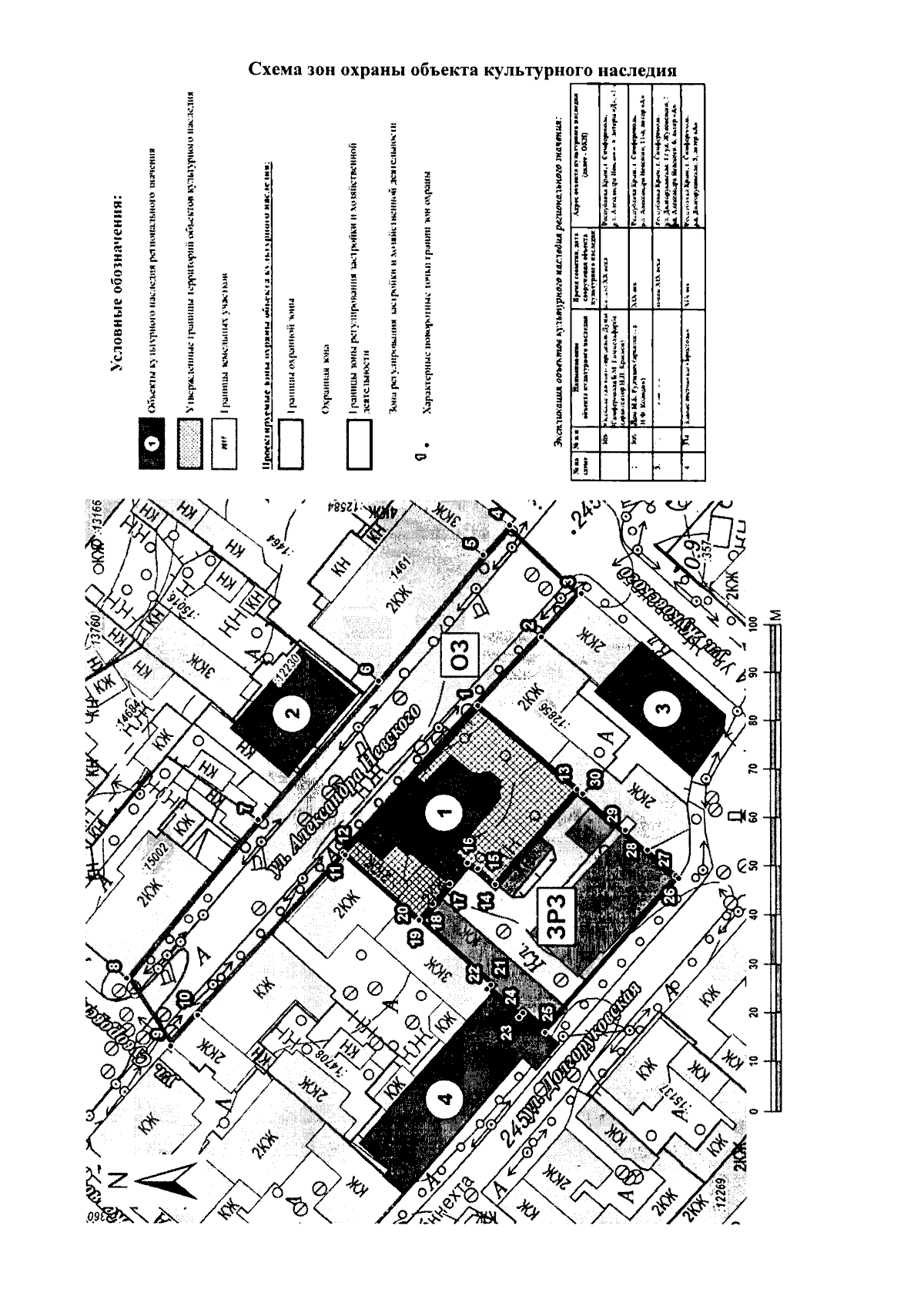
"Об утверждении границ зон охраны, режимов использования земель и требований к градостроительным регламентам в границах зон охраны объекта культурного наследия регионального значения "Особняк гласного городской Думы Симферополя Б.М. Гиммельфарба (архитектор Н.П. Краснов)", начало XX века, расположенного по адресу: Республика Крым, г. Симферополь, ул. Александра Невского, 8, литеры "Д", "Г"
(Зарегистрирован 14.02.2025 № 2224)
Номер опубликования: 9101202502180012
Дата опубликования: 18.02.2025
Страница №6 из 11:
Увеличить