Официальное опубликование правовых актов
ОФИЦИАЛЬНОЕ ОПУБЛИКОВАНИЕ
Приказ Министерства культуры Республики Крым от 24.02.2025 № 129-ОКН
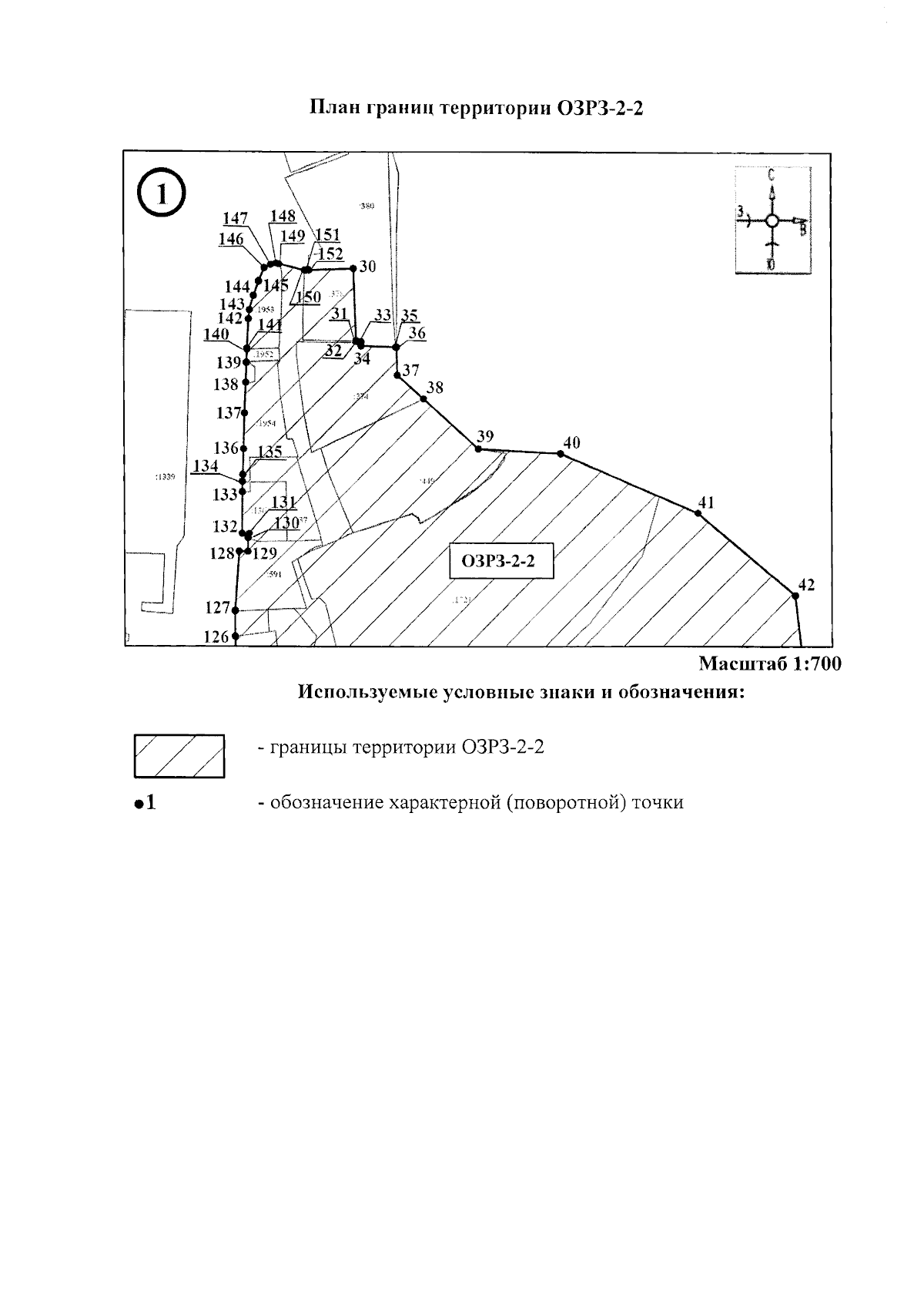
"Об утверждении границ объединенной зоны охраны, режимов использования земель и требований к градостроительным регламентам в границах объединенной зоны охраны объектов культурного наследия: федерального значения "Комплекс сооружений дворца", 1910 – 1911 годы: "Большой дворец", 1910 – 1911 годы; "Церковь Воздвижения", 1864 год; "Дворец Фредерикса", 1916 год; "Свитский корпус", конец XIX века; "Парковые сооружения", XIX век (ансамбль), расположенного по адресу: Республика Крым, городской округ Ялта, пгт Ливадия, ул. Батурина, д. 44 А, литеры "А", "Б", "В"; регионального значения: "Дом садовника (архитекторы И.А. Монигетти, А.Г. Венсан)", 1864 год, 1880 год, расположенного по адресу: Республика Крым, городской округ Ялта, пгт Ливадия, ул. Батурина, 32, литер "А"; "Дом свитский", XIX век, расположенного по адресу: Республика Крым, городской округ Ялта, пгт Ливадия, ул. Батурина, 44, литер "Г", лечебный корпус №4; "Малый служебный дом", начало XX века, расположенного по адресу: Республика Крым, городской округ Ялта, пгт Ливадия, ул. Батурина, 44, литер "Ж", спальный корпус № 7; "Прачечная с комнатой для утюга", начало XX века, расположенного по адресу: Республика Крым, городской округ Ялта, пгт Ливадия, ул. Батурина, 44, литер "З", лечебный корпус № 8; "Здание склада", 1862-1864 года, расположенного по адресу: Республика Крым, городской округ Ялта, пгт Ливадия, пер. Батурина, 4; "Контора управляющего имением", конец XIX века, расположенного по адресу: Республика Крым, городской округ Ялта, пгт Ливадия, пер. Батурина, 6, литер "А"; "Памятник Н.Н. Батурину-Замятину", расположенного по адресу: Республика Крым, городской округ Ялта, пгт Ливадия, ул. Батурина"
(Зарегистрирован 26.02.2025 № 2250)
Номер опубликования: 9101202502280002
Дата опубликования: 28.02.2025
Страница №140 из 217:
Увеличить