Официальное опубликование правовых актов
ОФИЦИАЛЬНОЕ ОПУБЛИКОВАНИЕ
Приказ Министерства культуры Республики Крым от 06.08.2025 № 474-ОКН
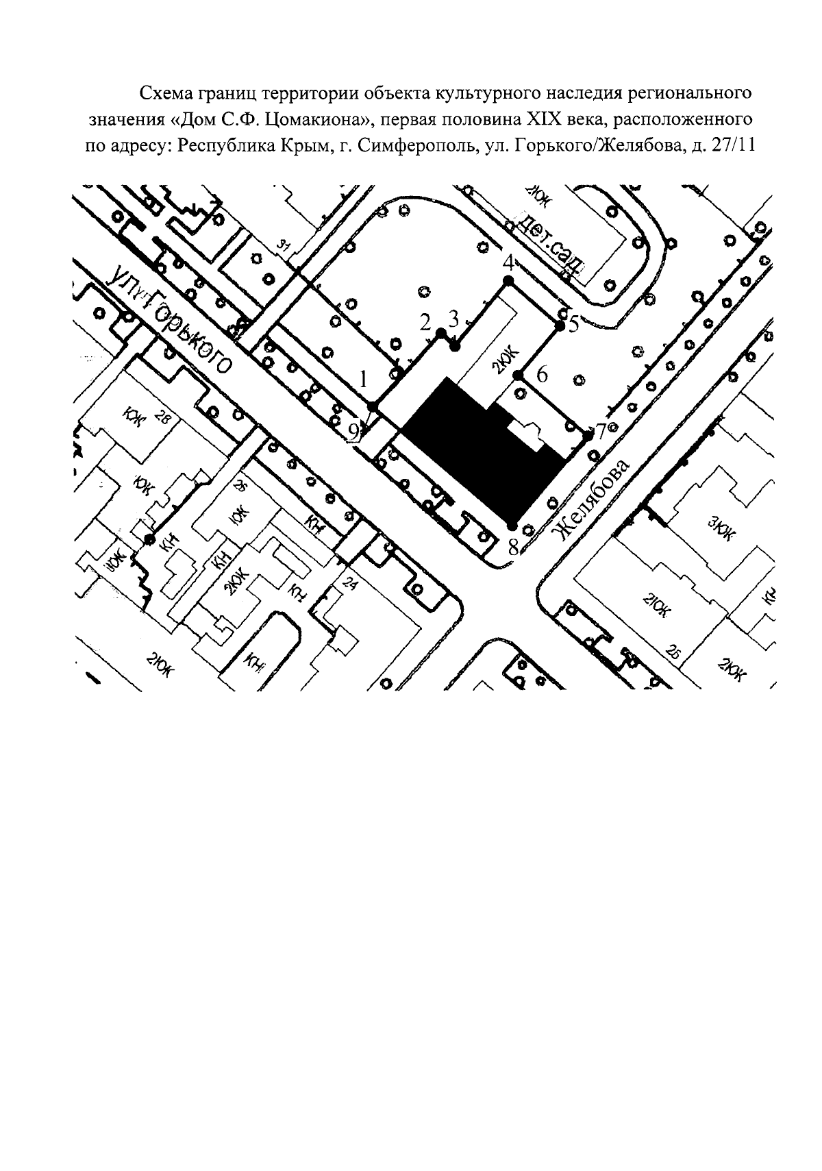
"О включении выявленного объекта культурного наследия "Усадебный дом С.Ф. Цомакиона", середина XIX века расположенного по адресу: Республика Крым, г. Симферополь, ул. Горького, 27/ул. Желябова, 11, в единый государственный реестр объектов культурного наследия (памятников истории и культуры) народов Российской Федерации в качестве объекта культурного наследия регионального значения и утверждении границ территории, режимов использования земель в границах территории объекта культурного наследия регионального значения"
(Зарегистрирован 08.08.2025 № 2655)
Номер опубликования: 9101202508120001
Дата опубликования: 12.08.2025
Страница №6 из 8:
Увеличить