Официальное опубликование правовых актов
ОФИЦИАЛЬНОЕ ОПУБЛИКОВАНИЕ
Постановление Правительства Севастополя от 14.12.2023 № 611-ПП
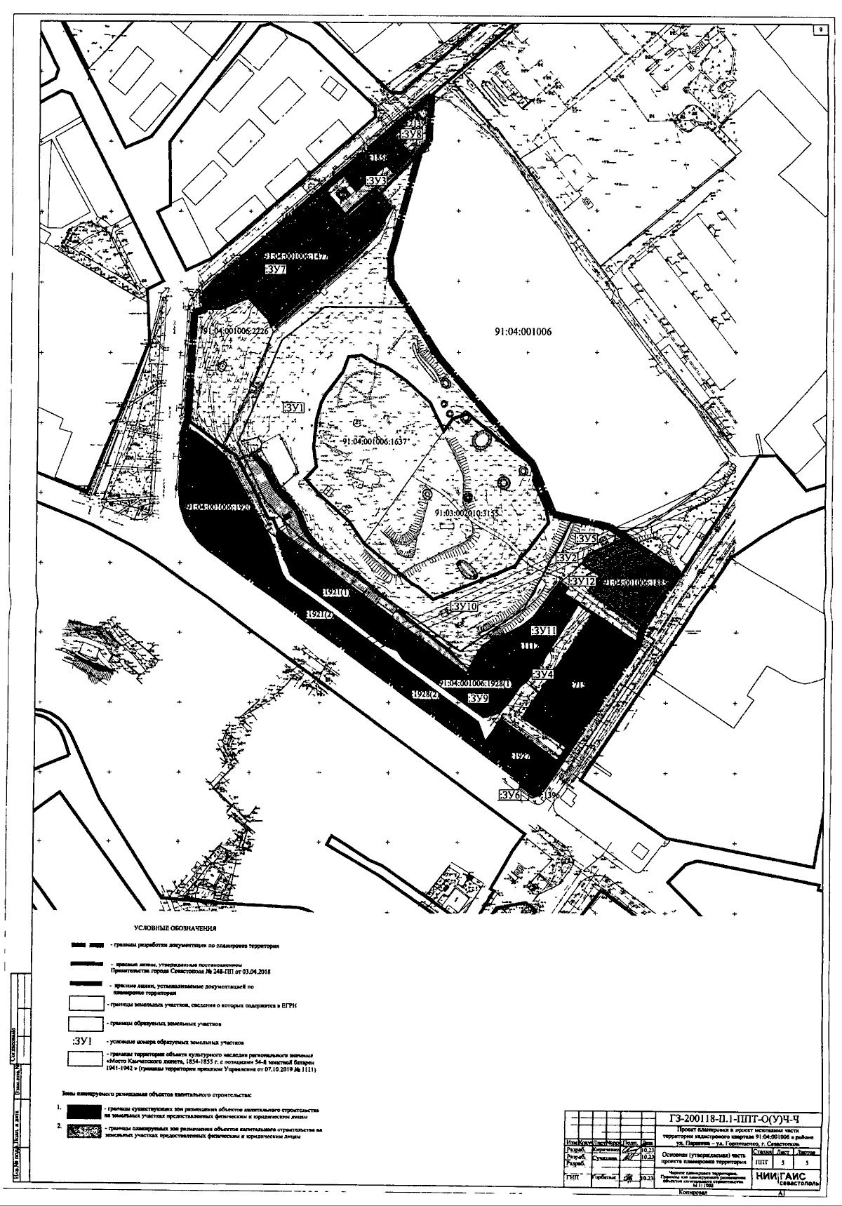
"Об утверждении документации по планировке территории "Проект планировки и проект межевания части территории кадастрового квартала 91:04:001006 в районе ул. Паршина - ул. Горпищенко, г. Севастополь"
Номер опубликования: 9200202312220023
Дата опубликования: 22.12.2023
Страница №11 из 94:
Увеличить