Постановление Правительства Севастополя от 25.07.2024 № 346-ПП
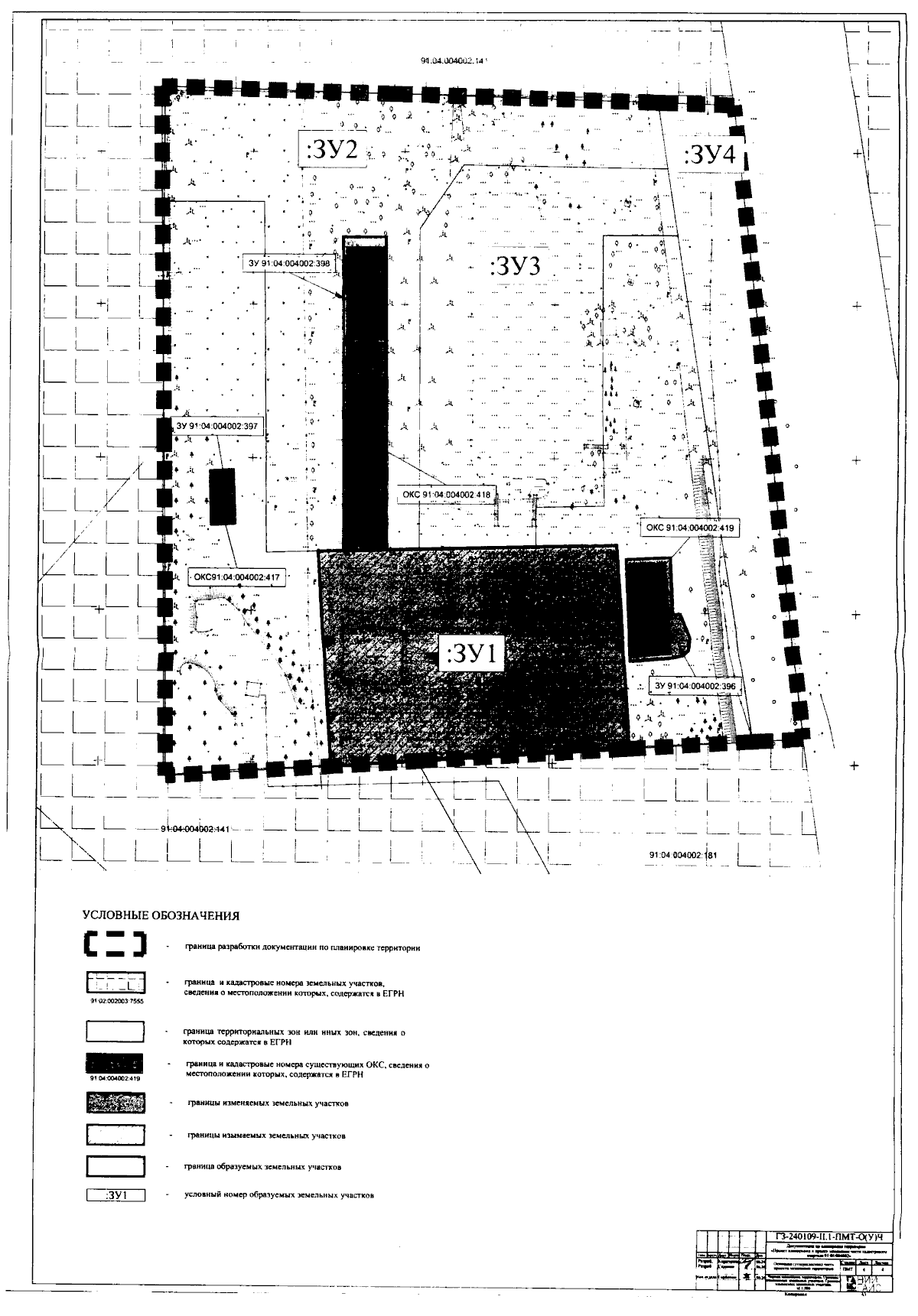
"Об утверждении документации по планировке территории "Проект планировки и проект межевания части кадастрового квартала 91:04:004002"
"Об утверждении документации по планировке территории "Проект планировки и проект межевания части кадастрового квартала 91:04:004002"
Номер опубликования: 9200202408010018
Дата опубликования:
01.08.2024
