Официальное опубликование правовых актов
ОФИЦИАЛЬНОЕ ОПУБЛИКОВАНИЕ
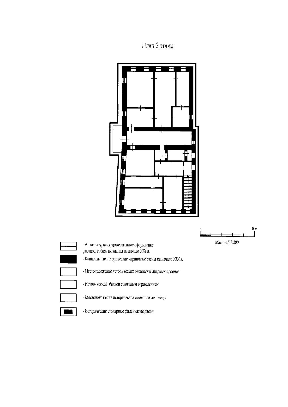
Приказ Управления по охране объектов культурного наследия Калужской области от 24.09.2025 № 180
"О включении в единый государственный реестр объектов культурного наследия (памятников истории и культуры) народов Российской Федерации выявленного объекта культурного наследия "Дом Фалеевых", XIX в., расположенного по адресу: Калужская область, г. Калуга, ул. Никитина, д. 2"
(Зарегистрирован 13.10.2025 № 15811)
Номер опубликования: 4001202510150010
Дата опубликования: 15.10.2025
Страница №16 из 20:
Увеличить